Just half a mile from the sand, this 3 bed coastal home in Morro Bay offers modern, low maintenance living in the sought after 55 plus Silver City Resort East, ideal as a primary residence or a well positioned second home along California’s Central Coast.
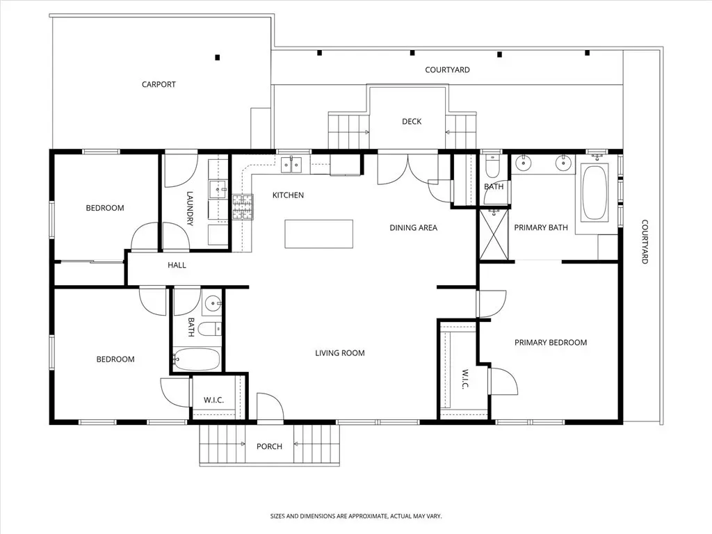
Built in 2021, this approximately 1,500 square foot double wide features three bedrooms and two full bathrooms, combining contemporary design with comfort in one of the closest 55 plus communities to the ocean. High ceilings, skylights, and abundant natural light create an airy interior, while flexible nooks provide space for reading, hobbies, or a home office.
The kitchen serves as the heart of the home with Whirlpool appliances, a French door refrigerator, oversized pan cabinetry, and a center island designed for gathering and everyday use. The open layout flows seamlessly into the dining and living areas, supporting both relaxed living and easy entertaining.
French doors from the dining area open to a covered patio and fenced backyard, offering a private outdoor setting for gardening, pets, or coastal evenings. A separate laundry room adds convenience, and included items enhance move in readiness, including washer, dryer, refrigerator, island bench, primary bed with iron headboard, two nightstands, and a large storage shed.
The space accommodates two vehicles plus a golf cart, adding flexibility for coastal living. A picket fence is shown virtually in one photo and park owner has approved the idea if buyer wants to add one.
Silver City Resort East offers a vibrant yet comfortable lifestyle with a resident clubhouse, community events, neighborhood park gatherings, and a welcoming social atmosphere. Enjoy close proximity to Morro Rock, the Embarcadero, fresh seafood dining, kayaking, hiking trails, and everyday conveniences.
Located on leased land with a monthly space rent of $999 plus metered utilities. Park approval required. Primary resident must be 55 or older with a co resident permitted at 45 plus.
This move in ready home delivers modern design, functional space, and true beach close living in one of Morro Bay’s most desirable 55 plus coastal communities.
Built in 2021, this approximately 1,500 square foot double wide features three bedrooms and two full bathrooms, combining contemporary design with comfort in one of the closest 55 plus communities to the ocean. High ceilings, skylights, and abundant natural light create an airy interior, while flexible nooks provide space for reading, hobbies, or a home office.
The kitchen serves as the heart of the home with Whirlpool appliances, a French door refrigerator, oversized pan cabinetry, and a center island designed for gathering and everyday use. The open layout flows seamlessly into the dining and living areas, supporting both relaxed living and easy entertaining.
French doors from the dining area open to a covered patio and fenced backyard, offering a private outdoor setting for gardening, pets, or coastal evenings. A separate laundry room adds convenience, and included items enhance move in readiness, including washer, dryer, refrigerator, island bench, primary bed with iron headboard, two nightstands, and a large storage shed.
The space accommodates two vehicles plus a golf cart, adding flexibility for coastal living. A picket fence is shown virtually in one photo and park owner has approved the idea if buyer wants to add one.
Silver City Resort East offers a vibrant yet comfortable lifestyle with a resident clubhouse, community events, neighborhood park gatherings, and a welcoming social atmosphere. Enjoy close proximity to Morro Rock, the Embarcadero, fresh seafood dining, kayaking, hiking trails, and everyday conveniences.
Located on leased land with a monthly space rent of $999 plus metered utilities. Park approval required. Primary resident must be 55 or older with a co resident permitted at 45 plus.
This move in ready home delivers modern design, functional space, and true beach close living in one of Morro Bay’s most desirable 55 plus coastal communities.
Current real estate data for Single Family in Morro Bay as of Apr 19, 2026
41
Single Family Listed
97
Avg DOM
765
Avg $ / SqFt
$1,415,263
Avg List Price
Property Details
Price:
$409,900
MLS #:
SC25249105
Status:
Active
Beds:
3
Baths:
2
Type:
Single Family
Subdivision:
Highway 41770
Neighborhood:
mrbymorrobay
Listed Date:
Oct 28, 2025
Finished Sq Ft:
1,500
Year Built:
2021
Schools
School District:
San Luis Coastal Unified
Interior
Appliances
DW, GD, GO, GWH, WHU
Bathrooms
2 Full Bathrooms
Cooling
NO
Flooring
LAM, CARP
Heating
CF
Interior Features
DATA, LAMC, PFRN, OFP, PTRY, HCEL, ILFP
Laundry Features
IR, IN, DINC, WINC
Levels
A
Exterior
Accessibility Features
NIS, _2AE
Community
55+
Community Features
SUB, PARK
Construction Materials
CMT, HAR
Direction Faces
E
Exterior Features
AW
Fencing
WD
Other Structures
SH
Parking Spots
2
Parking Total
2
Patio And Porch Features
CO, DK, EN, POF, POR
Roof
SHN
Security Features
MGR
Senior Community YN
1
Spa Features
NO
View
NO
Window Features
BLI, SCR
Financial
Lease Land Amount
$999
Lease Land Frequency
MO
Map
Contact Us
Mortgage Calculator
Community
- Address500 Atascadero Rd SPC F1 Morro Bay CA
- SubdivisionHighway 41(770)
- CityMorro Bay
- CountySan Luis Obispo
- Zip Code93442
Subdivisions in Morro Bay
Property Summary
- Located in the Highway 41(770) subdivision, 500 Atascadero Rd SPC F1 Morro Bay CA is a Single Family for sale in Morro Bay, CA, 93442. It is listed for $409,900 and features 3 beds, 2 baths, and has approximately 1,500 square feet of living space, and was originally constructed in 2021. The current price per square foot is $273. The average price per square foot for Single Family listings in Morro Bay is $765. The average listing price for Single Family in Morro Bay is $1,415,263. To schedule a showing of MLS#sc25249105 at 500 Atascadero Rd SPC F1 in Morro Bay, CA, contact your Outland and Associates / JoAnn Outland agent at 8054417754.
Similar Listings Nearby
Get Out There, A Simply Outgoing Approach to Life. James Outland Jr. is one of those rare people who simply has an outgoing approach to life. No matter the activity… from dune buggy riding to skydiving to motorcycling to riding the local Pismo Beach waves… James Outland Jr. approaches life with a “just get out there and do it” kind of attitude. A zest for Life. James’ zest for life is obviously apparent in his many exciting hobbies. In his spare time, he loves riding dune buggies or hi…
More About James
Courtesy of Real Estate eBroker Inc.. Disclaimer: All data relating to real estate for sale on this page comes from the Broker Reciprocity (BR) of the California Regional Multiple Listing Service. Detailed information about real estate listings held by brokerage firms other than Outland and Associates / JoAnn Outland include the name of the listing broker. Neither the listing company nor Outland and Associates / JoAnn Outland shall be responsible for any typographical errors, misinformation, misprints and shall be held totally harmless. The Broker providing this data believes it to be correct, but advises interested parties to confirm any item before relying on it in a purchase decision. Copyright 2026. California Regional Multiple Listing Service. All rights reserved. 500 Atascadero Rd SPC F1
Morro Bay, CA










































