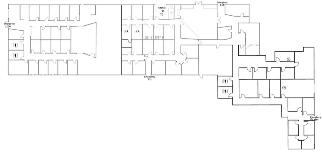
This suite consists of several private offices, two large meeting rooms, three sets of restrooms, and ample on-site parking. This is an excellent location near the San Luis Obispo County Airport. —– WAREHOUSE: This flex industrial building is currently configured as office but can be converted to warehouse space with roll-up doors. Flexible up to 16,081 SF, Price: TBD
Current real estate data for Single Family in San Luis Obispo as of Apr 20, 2026
278
Single Family Listed
129
Avg DOM
615
Avg $ / SqFt
$920,002
Avg List Price
Property Details
Price:
$0
MLS #:
SC25224642
Status:
Active
Beds:
0
Baths:
0
Type:
Single Family
Subtype:
Office
Neighborhood:
slosanluisobispo
Listed Date:
Jan 7, 2026
Total Sq Ft:
16,081
Lot Size:
16,081 sqft / 0.37 acres (approx)
Year Built:
1996
Schools
Interior
Exterior
Financial
Map
Contact Us
Mortgage Calculator
Community
- Address709 Fiero San Luis Obispo CA
- CitySan Luis Obispo
- CountySan Luis Obispo
- Zip Code93401
Subdivisions in San Luis Obispo
Property Summary
- 709 Fiero San Luis Obispo CA is a Single Family for sale in San Luis Obispo, CA, 93401. It is listed for $0 and features 0 beds, 0 baths, and has approximately 0 square feet of living space, and was originally constructed in 1996. The average price per square foot for Single Family listings in San Luis Obispo is $615. The average listing price for Single Family in San Luis Obispo is $920,002. To schedule a showing of MLS#sc25224642 at 709 Fiero in San Luis Obispo, CA, contact your Outland and Associates / JoAnn Outland agent at 8054417754.
Similar Listings Nearby
Full-time Real Estate Broker, sold 1400+ Properties in SLO and SBC County. 40+ years of local real estate knowledge and experience. I understand each sale is about you and your goals. I know as we get older, we don’t have time to make up for any mistakes especially when it comes to one the most significant investments. I care about my clients and work very hard to share my knowledge and protect you along the way. I place the appropriate verbiage in the listing and listing agreement depending…
More About JoAnn
Courtesy of Anderson & Senn Commercial Real Estate. Disclaimer: All data relating to real estate for sale on this page comes from the Broker Reciprocity (BR) of the California Regional Multiple Listing Service. Detailed information about real estate listings held by brokerage firms other than Outland and Associates / JoAnn Outland include the name of the listing broker. Neither the listing company nor Outland and Associates / JoAnn Outland shall be responsible for any typographical errors, misinformation, misprints and shall be held totally harmless. The Broker providing this data believes it to be correct, but advises interested parties to confirm any item before relying on it in a purchase decision. Copyright 2026. California Regional Multiple Listing Service. All rights reserved. 709 Fiero
San Luis Obispo, CA






















































