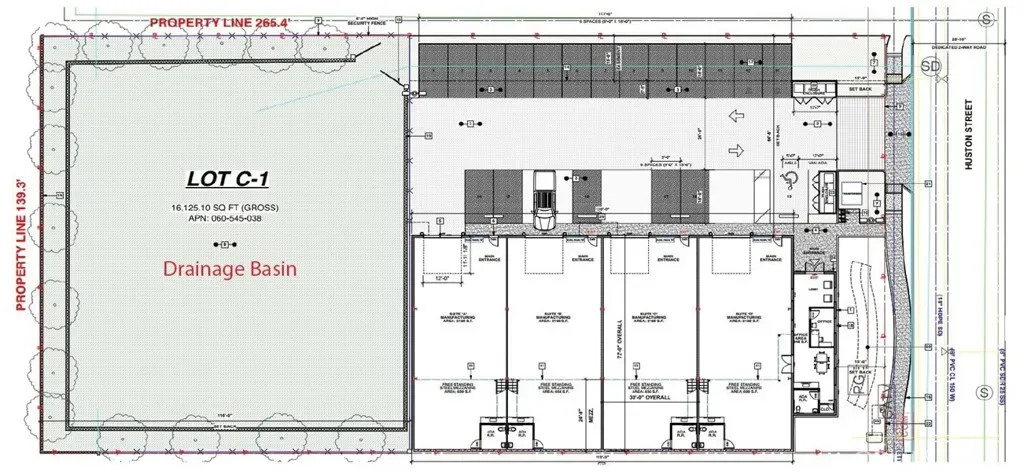
Prime industrial/warehouse zoned lot in Grover Beach with building approvals for a multi-tenant metal warehouse. A rare opportunity in San Luis Obispo County where warehouse land is scarce.
11,926 +/- SF Total Building Area: Configurable as a single warehouse or divisible into four 2,000–3,000 SF suites.
High Ceilings: Up to 32’ clear height, ideal for versatile industrial uses.
Ample Parking: Supports many use types.
Most Popular Product Type: Small warehouse units are in high demand with ever increasing rents.
Plans Fully Approved by the City of Grover Beach: Streamlined development process.
Flexible Use: Perfect for owner-users or investors seeking a high-demand commercial real estate asset.
Versatility: Versatile lot for warehouse/industrial/yard uses; current approvals optional, new project design possible.
This lot’s desirable price point, building approvals, size and zoning make it a standout investment in the hot warehouse market. Don’t miss out on this scarce opportunity to develop a premium warehouse property in Five Cities.
11,926 +/- SF Total Building Area: Configurable as a single warehouse or divisible into four 2,000–3,000 SF suites.
High Ceilings: Up to 32’ clear height, ideal for versatile industrial uses.
Ample Parking: Supports many use types.
Most Popular Product Type: Small warehouse units are in high demand with ever increasing rents.
Plans Fully Approved by the City of Grover Beach: Streamlined development process.
Flexible Use: Perfect for owner-users or investors seeking a high-demand commercial real estate asset.
Versatility: Versatile lot for warehouse/industrial/yard uses; current approvals optional, new project design possible.
This lot’s desirable price point, building approvals, size and zoning make it a standout investment in the hot warehouse market. Don’t miss out on this scarce opportunity to develop a premium warehouse property in Five Cities.
Property Details
Price:
$775,000
MLS #:
SC25196839
Status:
Active
Beds:
0
Baths:
0
Type:
Land
Subdivision:
Grover Beach 330
Neighborhood:
grvcgroverbeach
Listed Date:
Sep 2, 2025
Lot Size:
37,026 sqft / 0.85 acres (approx)
See this Listing
Schools
Interior
Exterior
Community Features
SL
View
NO
Financial
Map
Community
- Address948 Huston ST Grover Beach CA
- SubdivisionGrover Beach (330)
- CityGrover Beach
- CountySan Luis Obispo
- Zip Code93433
Subdivisions in Grover Beach
Market Summary
Current real estate data for Land in Grover Beach as of May 22, 2026
5
Land Listed
245
Avg DOM
$1,224,800
Avg List Price
Property Summary
- Located in the Grover Beach (330) subdivision, 948 Huston ST Grover Beach CA is a Land for sale in Grover Beach, CA, 93433. It is listed for $775,000 and features 1 acres.
Similar Listings Nearby
Courtesy of Colliers Tingey International Inc.. Disclaimer: All data relating to real estate for sale on this page comes from the Broker Reciprocity (BR) of the California Regional Multiple Listing Service. Detailed information about real estate listings held by brokerage firms other than include the name of the listing broker. Neither the listing company nor shall be responsible for any typographical errors, misinformation, misprints and shall be held totally harmless. The Broker providing this data believes it to be correct, but advises interested parties to confirm any item before relying on it in a purchase decision. Copyright 2026. California Regional Multiple Listing Service. All rights reserved. 948 Huston ST
Grover Beach, CA
