2720 Oak View
Templeton, CA, 93465
$4,250,000
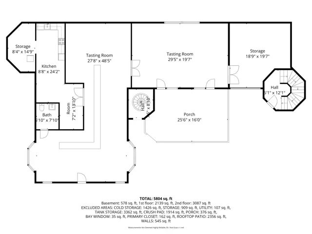
At the corner of Vineyard Drive and Highway 46 West, this highly visible winery
offers a tasting room, onsite operations, and expansion potential in one of the
region’s most sought-after retail locations. Originally established in the 1980s, the
site sees ~6,500 to 8,000 passing vehicles daily.
The winery is equipped for wine fermentation, storage, and direct-to-consumer
operations and includes a tank room, lab, office, cold storage, utility areas, crush
pad, and separate barrel storage.
Practical capacity is up to 10,000 cases annually (12 bottles per case), with
potential to expand up to the permitted capacity of 30,000 cases annually. Winery
permitting is in place, including Air Pollution Control District approvals.
The tasting room sits at ground level above the production area, with a covered
porch and outdoor patios. Approved for retail use, the inviting space is designed for
tastings, with views into the tank room for a behind-the-scenes look.
The third level offers office and support space, with opportunity for residential or
short-term rental use. Rooftop and indoor-outdoor living areas are ideal for onsite
stays and private events.
Water and environmental systems include an onsite well and wastewater
treatment system.
For winery operators, boutique wine brands, and investors, this winery offers a
prominent location, infrastructure, and flexibility for hospitality and events as part
of a complete wine country experience.
offers a tasting room, onsite operations, and expansion potential in one of the
region’s most sought-after retail locations. Originally established in the 1980s, the
site sees ~6,500 to 8,000 passing vehicles daily.
The winery is equipped for wine fermentation, storage, and direct-to-consumer
operations and includes a tank room, lab, office, cold storage, utility areas, crush
pad, and separate barrel storage.
Practical capacity is up to 10,000 cases annually (12 bottles per case), with
potential to expand up to the permitted capacity of 30,000 cases annually. Winery
permitting is in place, including Air Pollution Control District approvals.
The tasting room sits at ground level above the production area, with a covered
porch and outdoor patios. Approved for retail use, the inviting space is designed for
tastings, with views into the tank room for a behind-the-scenes look.
The third level offers office and support space, with opportunity for residential or
short-term rental use. Rooftop and indoor-outdoor living areas are ideal for onsite
stays and private events.
Water and environmental systems include an onsite well and wastewater
treatment system.
For winery operators, boutique wine brands, and investors, this winery offers a
prominent location, infrastructure, and flexibility for hospitality and events as part
of a complete wine country experience.
Current real estate data for Single Family in Templeton as of Apr 19, 2026
49
Single Family Listed
90
Avg DOM
568
Avg $ / SqFt
$1,851,451
Avg List Price
Property Details
Price:
$4,250,000
MLS #:
NS26083063
Status:
Active
Beds:
2
Baths:
3
Type:
Single Family
Subtype:
Commercial/Residential
Neighborhood:
699notdefined
Listed Date:
Apr 17, 2026
Finished Sq Ft:
17,701
Lot Size:
165,528 sqft / 3.80 acres (approx)
Year Built:
1986
Schools
School District:
Templeton Unified
Interior
Bathrooms
2 Full Bathrooms, 1 Half Bathroom
Cooling
CA
Interior Features
BC, CC
Laundry Features
IR
Levels
C
Main Level Bathrooms
1
Exterior
Common Walls
NCW
Community Features
RUR
Construction Materials
STC
Parking Spots
22
Parking Total
22
Patio And Porch Features
PTO
Roof
CON
View
VIN
Financial
Map
Contact Us
Mortgage Calculator
Community
- Address2720 Oak View Templeton CA
- CityTempleton
- CountySan Luis Obispo
- Zip Code93465
Subdivisions in Templeton
Property Summary
- 2720 Oak View Templeton CA is a Single Family for sale in Templeton, CA, 93465. It is listed for $4,250,000 and features 2 beds, 3 baths, and has approximately 17,701 square feet of living space, and was originally constructed in 1986. The current price per square foot is $240. The average price per square foot for Single Family listings in Templeton is $568. The average listing price for Single Family in Templeton is $1,851,451. To schedule a showing of MLS#ns26083063 at 2720 Oak View in Templeton, CA, contact your Outland and Associates / JoAnn Outland agent at 8054417754.
Similar Listings Nearby
Full-time Real Estate Broker, sold 1400+ Properties in SLO and SBC County. 40+ years of local real estate knowledge and experience. I understand each sale is about you and your goals. I know as we get older, we don’t have time to make up for any mistakes especially when it comes to one the most significant investments. I care about my clients and work very hard to share my knowledge and protect you along the way. I place the appropriate verbiage in the listing and listing agreement depending…
More About JoAnn
Courtesy of Vineyard Professional Real Estate. Disclaimer: All data relating to real estate for sale on this page comes from the Broker Reciprocity (BR) of the California Regional Multiple Listing Service. Detailed information about real estate listings held by brokerage firms other than Outland and Associates / JoAnn Outland include the name of the listing broker. Neither the listing company nor Outland and Associates / JoAnn Outland shall be responsible for any typographical errors, misinformation, misprints and shall be held totally harmless. The Broker providing this data believes it to be correct, but advises interested parties to confirm any item before relying on it in a purchase decision. Copyright 2026. California Regional Multiple Listing Service. All rights reserved. 2720 Oak View
Templeton, CA
































































