369 Dunbar
Morro Bay, CA, 93442
$749,900
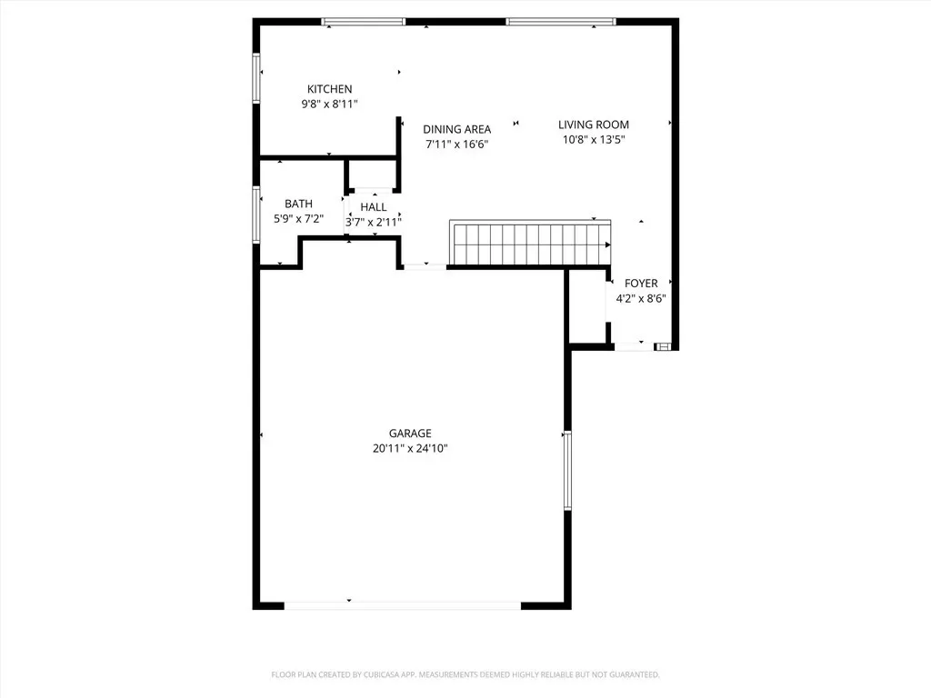
Located in the heart of Morro Bay, this charming 2-bedroom, 1.5-bath home with a two-car garage sits on a 4,600 sq ft street-to-street lot offering flexibility and potential. The unique lot configuration may allow for RV parking access, an ADU, or expanded garden space.
Tucked at the end of a quiet dead-end street lined with Monterey cypress trees, the setting provides privacy and insulation from close by road noise. Enter through the oak front door with sidelights into a tiled foyer with a convenient entry closet. The open-concept living, dining, and kitchen areas feature new carpet and some fresh interior paint, creating a bright and welcoming space.
The kitchen is appointed with granite countertops, tile flooring, and stainless steel appliances. A tiled half bath for guests completes the upper level.
Downstairs, the primary bedroom includes a spacious closet and direct access to a fenced patio with gated entry to the backyard—perfect for indoor-outdoor living. The secondary bedroom is generously sized, offering flexibility for a bedroom/office, or art/play area. The full bathroom features a quartz vanity, tub installation, and tiled floors.
The attached two-car garage includes built-in cabinets, washer and dryer hookups, and utility access for added convenience.
Tucked at the end of a quiet dead-end street lined with Monterey cypress trees, the setting provides privacy and insulation from close by road noise. Enter through the oak front door with sidelights into a tiled foyer with a convenient entry closet. The open-concept living, dining, and kitchen areas feature new carpet and some fresh interior paint, creating a bright and welcoming space.
The kitchen is appointed with granite countertops, tile flooring, and stainless steel appliances. A tiled half bath for guests completes the upper level.
Downstairs, the primary bedroom includes a spacious closet and direct access to a fenced patio with gated entry to the backyard—perfect for indoor-outdoor living. The secondary bedroom is generously sized, offering flexibility for a bedroom/office, or art/play area. The full bathroom features a quartz vanity, tub installation, and tiled floors.
The attached two-car garage includes built-in cabinets, washer and dryer hookups, and utility access for added convenience.
Current real estate data for Single Family in Morro Bay as of Apr 21, 2026
42
Single Family Listed
97
Avg DOM
762
Avg $ / SqFt
$1,426,686
Avg List Price
Property Details
Price:
$749,900
MLS #:
SC26030638
Status:
Pending
Beds:
2
Baths:
2
Type:
Single Family
Subtype:
Single Family Residence
Subdivision:
Harbor Tract760
Neighborhood:
mrbymorrobay
Listed Date:
Feb 18, 2026
Finished Sq Ft:
1,128
Lot Size:
4,600 sqft / 0.11 acres (approx)
Year Built:
1974
Schools
School District:
San Luis Coastal Unified
Middle School:
Los Osos
High School:
Morro Bay
Interior
Appliances
GD, FSR, GWH
Bathrooms
1 Full Bathroom, 1 Half Bathroom
Cooling
NO
Flooring
TILE, LAM, CARP
Heating
WL
Interior Features
CF, GRNC, TILC, OFP
Laundry Features
GE, IG
Levels
U
Main Level Bathrooms
1
Exterior
Attached Garage YN
1
Common Walls
NCW
Community Features
CW
Construction Materials
STC
Fencing
WD, REPR
Garage Spaces
2
Parking Spots
2
Parking Total
2
Patio And Porch Features
POF
Roof
CMP
Spa Features
NO
View
HI
Financial
Map
Contact Us
Mortgage Calculator
Community
- Address369 Dunbar Morro Bay CA
- SubdivisionHarbor Tract(760)
- CityMorro Bay
- CountySan Luis Obispo
- Zip Code93442
Subdivisions in Morro Bay
Property Summary
- Located in the Harbor Tract(760) subdivision, 369 Dunbar Morro Bay CA is a Single Family for sale in Morro Bay, CA, 93442. It is listed for $749,900 and features 2 beds, 2 baths, and has approximately 1,128 square feet of living space, and was originally constructed in 1974. The current price per square foot is $665. The average price per square foot for Single Family listings in Morro Bay is $762. The average listing price for Single Family in Morro Bay is $1,426,686. To schedule a showing of MLS#sc26030638 at 369 Dunbar in Morro Bay, CA, contact your Outland and Associates / JoAnn Outland agent at 8054417754.
Similar Listings Nearby
Full-time Real Estate Broker, sold 1400+ Properties in SLO and SBC County. 40+ years of local real estate knowledge and experience. I understand each sale is about you and your goals. I know as we get older, we don’t have time to make up for any mistakes especially when it comes to one the most significant investments. I care about my clients and work very hard to share my knowledge and protect you along the way. I place the appropriate verbiage in the listing and listing agreement depending…
More About JoAnn
Courtesy of RE/MAX Success. Disclaimer: All data relating to real estate for sale on this page comes from the Broker Reciprocity (BR) of the California Regional Multiple Listing Service. Detailed information about real estate listings held by brokerage firms other than Outland and Associates / JoAnn Outland include the name of the listing broker. Neither the listing company nor Outland and Associates / JoAnn Outland shall be responsible for any typographical errors, misinformation, misprints and shall be held totally harmless. The Broker providing this data believes it to be correct, but advises interested parties to confirm any item before relying on it in a purchase decision. Copyright 2026. California Regional Multiple Listing Service. All rights reserved. 369 Dunbar
Morro Bay, CA























