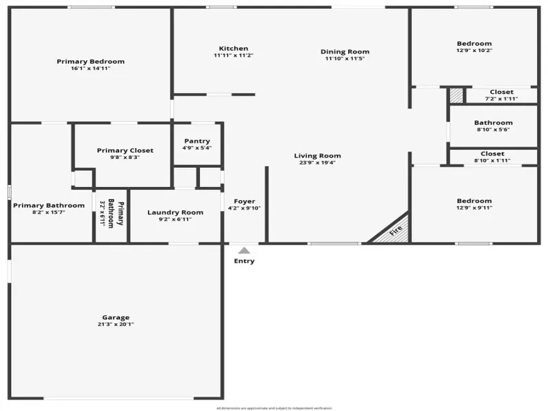
Located in the desirable community of Stallion Springs in Tehachapi, this well-maintained 3 bedroom, 2 bathroom home offers approximately 1,728 square feet of comfortable living space on a generous lot. Pride of Ownership shows in this one! The home features a functional layout with spacious living areas and natural light. The kitchen is well-appointed with granite countertops and a large walk-in pantry and under-sink reverse osmosis water filtration system opening to the main living space ideal for both everyday living and entertaining. The master bedroom offers a large walk-in closet, providing amazing storage and convenience. Additional highlights include a tankless water heater, water softener, attached garage, sprinkler system, and a backyard storage shed for added functionality. With 0.28 acres, the property provides space to enjoy the outdoors and the peaceful surroundings, while still being just a short drive from local amenities. Clean, Turn-Key Home!
Current real estate data for Single Family in Tehachapi as of Apr 27, 2026
77
Single Family Listed
75
Avg DOM
269
Avg $ / SqFt
$540,099
Avg List Price
Property Details
Price:
$445,000
MLS #:
PI26085687
Status:
Active
Beds:
3
Baths:
2
Type:
Single Family
Subtype:
Single Family Residence
Neighborhood:
thptehachapi
Listed Date:
Apr 20, 2026
Finished Sq Ft:
1,728
Lot Size:
12,350 sqft / 0.28 acres (approx)
Year Built:
2014
Schools
School District:
Bakersfield City
Interior
Bathrooms
2 Full Bathrooms
Cooling
CA
Heating
CF, FIR
Interior Features
CF
Laundry Features
IR
Levels
A
Main Level Bathrooms
2
Main Level Bedrooms
3
Exterior
Attached Garage YN
1
Common Walls
NCW
Community Features
SL, MTN
Garage Spaces
2
Parking Spots
2
Parking Total
2
Roof
CMP
View
MT, NE
Financial
Map
Contact Us
Mortgage Calculator
Community
- Address18110 Churchill Tehachapi CA
- CityTehachapi
- CountyKern
- Zip Code93561
Property Summary
- 18110 Churchill Tehachapi CA is a Single Family for sale in Tehachapi, CA, 93561. It is listed for $445,000 and features 3 beds, 2 baths, and has approximately 1,728 square feet of living space, and was originally constructed in 2014. The current price per square foot is $258. The average price per square foot for Single Family listings in Tehachapi is $269. The average listing price for Single Family in Tehachapi is $540,099. To schedule a showing of MLS#pi26085687 at 18110 Churchill in Tehachapi, CA, contact your Outland and Associates / JoAnn Outland agent at 8054417754.
Similar Listings Nearby
Full-time Real Estate Broker, sold 1400+ Properties in SLO and SBC County. 40+ years of local real estate knowledge and experience. I understand each sale is about you and your goals. I know as we get older, we don’t have time to make up for any mistakes especially when it comes to one the most significant investments. I care about my clients and work very hard to share my knowledge and protect you along the way. I place the appropriate verbiage in the listing and listing agreement depending…
More About JoAnn
Courtesy of Miramar International Calloway. Disclaimer: All data relating to real estate for sale on this page comes from the Broker Reciprocity (BR) of the California Regional Multiple Listing Service. Detailed information about real estate listings held by brokerage firms other than Outland and Associates / JoAnn Outland include the name of the listing broker. Neither the listing company nor Outland and Associates / JoAnn Outland shall be responsible for any typographical errors, misinformation, misprints and shall be held totally harmless. The Broker providing this data believes it to be correct, but advises interested parties to confirm any item before relying on it in a purchase decision. Copyright 2026. California Regional Multiple Listing Service. All rights reserved. 18110 Churchill
Tehachapi, CA










































