1928 S Elm ST
Oceano, CA, 93445
$515,000
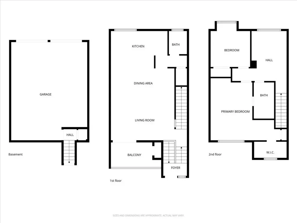
Welcome to your coastal retreat in the charming beachside community of Oceano. This beautifully updated 2 bedroom 1.5 bathroom townhouse offers over 1,200 sq’ of living space with the perfect blend of comfort, style and convenience. Ideal for first-time homebuyers or as a Central Coast getaway. Step inside to discover a bright, open floor plan designed for effortless living and entertaining. The home features vinyl plank flooring, fresh paint throughout with updated kitchen and bathrooms. The kitchen provides quartz countertop bar, all new appliances while looking into the inviting living room that opens to a private deck that’s perfect for BBQs. Upstairs, the primary bedroom includes a walk-in closet and direct access to an updated bathroom. There is a flex room that would be ideal for an office or addition sitting area. Outdoor spaces are just as inviting with a fenced patio featuring low maintenance yard that’s great for relaxing or entertaining. 2 car garage with Washer/Dryer hookups. Located less than 2 miles from the entrance to the dunes and minutes from Pismo Beach, this home provides easy access to beaches, dining, wine tasting and local attractions. Nearby conveniences include shopping, restaurants, and transit options, including an Amtrak station. This home combines accessibility with laid-back beach living. Don’t miss your opportunity to own a slice of the Central Coast.
Property Details
Price:
$515,000
MLS #:
SC26074413
Status:
Active
Beds:
2
Baths:
2
Type:
Townhouse
Subdivision:
Oceano350
Neighborhood:
ocnooceano
Listed Date:
Apr 7, 2026
Finished Sq Ft:
1,224
Lot Size:
1,224 sqft / 0.03 acres (approx)
Year Built:
1985
Schools
School District:
Lucia Mar Unified
Interior
Appliances
DW, GD, MW, RF, ESA, GER, GWH, HOD, SCO, WHU
Bathrooms
1 Full Bathroom, 1 Half Bathroom
Cooling
NO
Flooring
VINY
Heating
FA, GAS
Interior Features
RECL, GRNC, UFRN, LRDA, _2STR
Laundry Features
GE, IG, WH
Levels
C
Main Level Bathrooms
1
Exterior
Attached Garage YN
1
Common Walls
_2CW
Community Features
SDW
Construction Materials
WOD, DWAL
Direction Faces
S
Fencing
WD, WI
Garage Spaces
2
Parking Spots
2
Parking Total
2
Patio And Porch Features
DK, WOD
Roof
CMP
Spa Features
NO
View
NO
Window Features
SCR
Financial
HOA Fee
$321
HOA Fee Frequency
MO
Map
Contact Us
Mortgage Calculator
Community
- Address1928 S Elm ST Oceano CA
- SubdivisionOceano(350)
- CityOceano
- CountySan Luis Obispo
- Zip Code93445
Subdivisions in Oceano
Property Summary
- Located in the Oceano(350) subdivision, 1928 S Elm ST Oceano CA is a Townhouse for sale in Oceano, CA, 93445. It is listed for $515,000 and features 2 beds, 2 baths, and has approximately 1,224 square feet of living space, and was originally constructed in 1985. The current price per square foot is $421. The average price per square foot for Townhouse listings in Oceano is $414. The average listing price for Townhouse in Oceano is $507,000. To schedule a showing of MLS#sc26074413 at 1928 S Elm ST in Oceano, CA, contact your Outland and Associates / JoAnn Outland agent at 8054417754.
Similar Listings Nearby
Full-time Real Estate Broker, sold 1400+ Properties in SLO and SBC County. 40+ years of local real estate knowledge and experience. I understand each sale is about you and your goals. I know as we get older, we don’t have time to make up for any mistakes especially when it comes to one the most significant investments. I care about my clients and work very hard to share my knowledge and protect you along the way. I place the appropriate verbiage in the listing and listing agreement depending…
More About JoAnn
Courtesy of Holland Strand Real Estate. Disclaimer: All data relating to real estate for sale on this page comes from the Broker Reciprocity (BR) of the California Regional Multiple Listing Service. Detailed information about real estate listings held by brokerage firms other than Outland and Associates / JoAnn Outland include the name of the listing broker. Neither the listing company nor Outland and Associates / JoAnn Outland shall be responsible for any typographical errors, misinformation, misprints and shall be held totally harmless. The Broker providing this data believes it to be correct, but advises interested parties to confirm any item before relying on it in a purchase decision. Copyright 2026. California Regional Multiple Listing Service. All rights reserved. 1928 S Elm ST
Oceano, CA






























