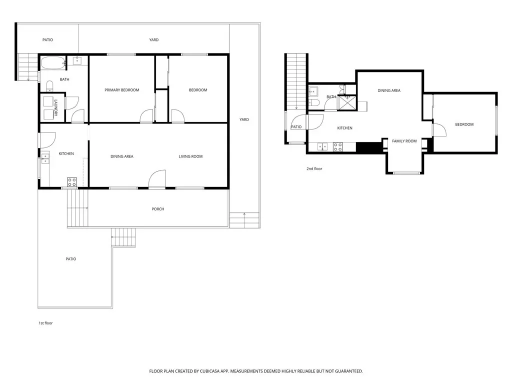
“Charming up/down duplex offering excellent investment potential or owner-occupant flexibility! The lower unit features 2 bedrooms, 1 full bath, spacious living room, updated kitchen with appliances, laundry hookups and private entrance. Upstairs unit boasts 1 bedroom, 1 bath, cozy living area, eat-in kitchen, and separate entrance for privacy. Great location in the heart of Frazier Park and convenient location to shops and more. Total living approx. 2,300sq. ft. with Some Photo show 3D Virtual Staging and Flooring for ideas and how the spaces can be used to the full potential, and is Not the actual furniture or personal property, appliance in place. Ample parking and a central, commuter friendly location. Property is C1 zoning strong potential and explore mixed-use opportunities or residential focus. Great investment in California’s housing market. SELLER FINANCING Available!
Current real estate data for Single Family in Frazier Park as of Apr 16, 2026
61
Single Family Listed
87
Avg DOM
261
Avg $ / SqFt
$607,940
Avg List Price
Property Details
Price:
$369,000
MLS #:
WS26014490
Status:
Active
Beds:
0
Baths:
0
Type:
Single Family
Subtype:
Duplex
Neighborhood:
frzfrazierpark
Listed Date:
Jan 20, 2026
Total Sq Ft:
2,300
Lot Size:
5,552 sqft / 0.13 acres (approx)
Year Built:
1982
Schools
Interior
Cooling
NO
Heating
FA
Laundry Features
IR
Exterior
Common Walls
NCW
Community Features
BLM
Spa Features
NO
View
CN
Financial
Map
Contact Us
Mortgage Calculator
Community
- Address3201 Mt Pinos Way, Frazier Park CA
- CityFrazier Park
- CountyKern
- Zip Code93225
Property Summary
- 3201 Mt Pinos Way, Frazier Park CA is a Single Family for sale in Frazier Park, CA, 93225. It is listed for $369,000 and features 0 beds, 0 baths, and has approximately 0 square feet of living space, and was originally constructed in 1982. The average price per square foot for Single Family listings in Frazier Park is $261. The average listing price for Single Family in Frazier Park is $607,940. To schedule a showing of MLS#ws26014490 at 3201 Mt Pinos Way, in Frazier Park, CA, contact your Outland and Associates / JoAnn Outland agent at 8054417754.
Similar Listings Nearby
Full-time Real Estate Broker, sold 1400+ Properties in SLO and SBC County. 40+ years of local real estate knowledge and experience. I understand each sale is about you and your goals. I know as we get older, we don’t have time to make up for any mistakes especially when it comes to one the most significant investments. I care about my clients and work very hard to share my knowledge and protect you along the way. I place the appropriate verbiage in the listing and listing agreement depending…
More About JoAnn
Courtesy of Peak Stone Realty & Development Inc.. Disclaimer: All data relating to real estate for sale on this page comes from the Broker Reciprocity (BR) of the California Regional Multiple Listing Service. Detailed information about real estate listings held by brokerage firms other than Outland and Associates / JoAnn Outland include the name of the listing broker. Neither the listing company nor Outland and Associates / JoAnn Outland shall be responsible for any typographical errors, misinformation, misprints and shall be held totally harmless. The Broker providing this data believes it to be correct, but advises interested parties to confirm any item before relying on it in a purchase decision. Copyright 2026. California Regional Multiple Listing Service. All rights reserved. 3201 Mt Pinos Way,
Frazier Park, CA

















