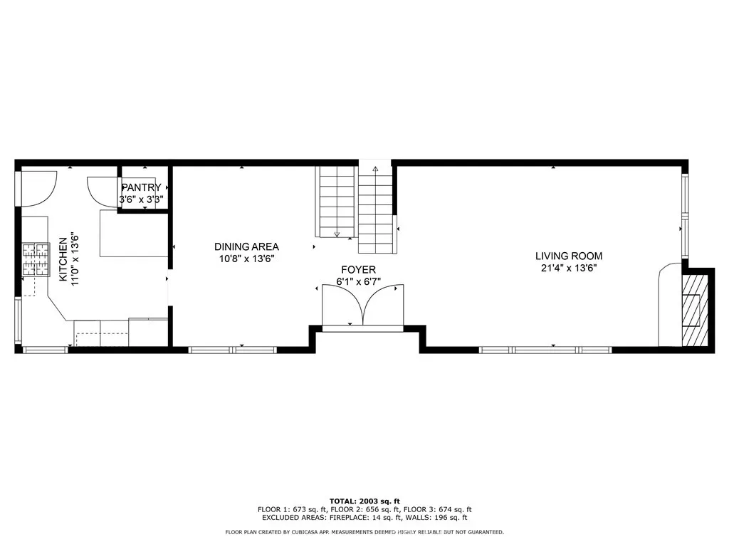
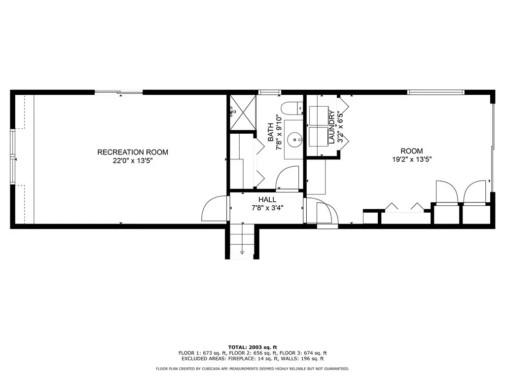
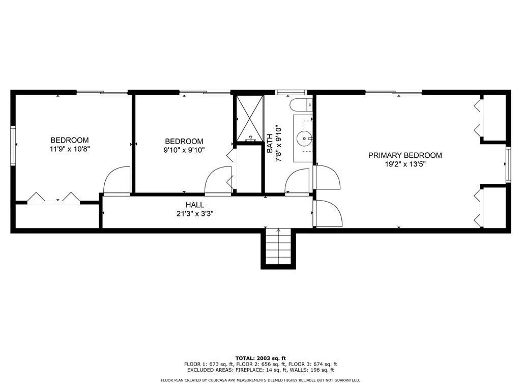
This well maintained 3 bedroom, 2 bathroom residence offers 2100 sf of living space on a serene ~ 0.36 acre lot, combining charm, privacy and modern updates in a prime Atascadero location, right down the road from the Atascadero Lake and Zoo. From the moment you arrive, you’ll be drawn in by the home’s wonderful curb appeal, setting the tone for the warmth and character found throughout. Step inside to find vaulted ceilings that create a bright, airy atmosphere. The spacious living room features large picture windows that flood the space with natural light, along with a cozy wood-burning stove—perfect for cool Atascadero evenings. The kitchen has been updated with granite countertops, open shelving and a walk-in pantry, offering a practical and efficient layout. Upstairs, you’ll find two guest bedrooms, each with sliding glass doors leading to a private deck overlooking the tranquil backyard. The main bathroom boasts a large walk-in shower, while the primary bedroom features dual closets and its own access to the deck—your own private retreat. Downstairs, a cozy family room offers built-in bookshelves with additional storage and a convenient second bathroom with direct access to the backyard—perfect for guests or outdoor entertaining. Step outside to truly unwind. The expansive backyard is lined with mature oak trees, creating a peaceful, private oasis. Enjoy dining al fresco or hosting friends on the large brick paver patio, complete with built-in benches for extra seating. Located near Atascadero Lake Park, with its year-round events and recreational opportunities and just minutes from downtown and freeway access, this property offers a comfortable and connected lifestyle in a charming neighborhood setting. Please review the Virtual Tour for additional information.
Current real estate data for Single Family in Atascadero as of Apr 21, 2026
111
Single Family Listed
178
Avg DOM
442
Avg $ / SqFt
$687,800
Avg List Price
Property Details
Price:
$799,000
MLS #:
NS25229804
Status:
Active
Beds:
3
Baths:
2
Type:
Single Family
Subtype:
Single Family Residence
Subdivision:
ATNorthwest20
Neighborhood:
atscatascadero
Listed Date:
Oct 14, 2025
Finished Sq Ft:
2,100
Lot Size:
15,650 sqft / 0.36 acres (approx)
Year Built:
1966
Schools
School District:
Atascadero Unified
Interior
Appliances
DW, GD, MW, GS, EO, WHU
Bathrooms
2 Full Bathrooms
Cooling
CA
Flooring
CARP
Heating
FA
Interior Features
BI, CF, RECL, GRNC, TILC, PTRY, CC
Laundry Features
IN
Levels
S
Exterior
Common Walls
NCW
Community Features
SUB, LAKE, PARK
Roof
CMP
Spa Features
NO
View
TW, NE
Window Features
DPW
Financial
Map
Contact Us
Mortgage Calculator
Community
- Address8120 Azucena Atascadero CA
- SubdivisionATNorthwest(20)
- CityAtascadero
- CountySan Luis Obispo
- Zip Code93422
Subdivisions in Atascadero
Property Summary
- Located in the ATNorthwest(20) subdivision, 8120 Azucena Atascadero CA is a Single Family for sale in Atascadero, CA, 93422. It is listed for $799,000 and features 3 beds, 2 baths, and has approximately 2,100 square feet of living space, and was originally constructed in 1966. The current price per square foot is $380. The average price per square foot for Single Family listings in Atascadero is $442. The average listing price for Single Family in Atascadero is $687,800. To schedule a showing of MLS#ns25229804 at 8120 Azucena in Atascadero, CA, contact your Outland and Associates / JoAnn Outland agent at 8054417754.
Similar Listings Nearby
Full-time Real Estate Broker, sold 1400+ Properties in SLO and SBC County. 40+ years of local real estate knowledge and experience. I understand each sale is about you and your goals. I know as we get older, we don’t have time to make up for any mistakes especially when it comes to one the most significant investments. I care about my clients and work very hard to share my knowledge and protect you along the way. I place the appropriate verbiage in the listing and listing agreement depending…
More About JoAnn
Courtesy of Malik Real Estate Group, Inc.. Disclaimer: All data relating to real estate for sale on this page comes from the Broker Reciprocity (BR) of the California Regional Multiple Listing Service. Detailed information about real estate listings held by brokerage firms other than Outland and Associates / JoAnn Outland include the name of the listing broker. Neither the listing company nor Outland and Associates / JoAnn Outland shall be responsible for any typographical errors, misinformation, misprints and shall be held totally harmless. The Broker providing this data believes it to be correct, but advises interested parties to confirm any item before relying on it in a purchase decision. Copyright 2026. California Regional Multiple Listing Service. All rights reserved. 8120 Azucena
Atascadero, CA




























































