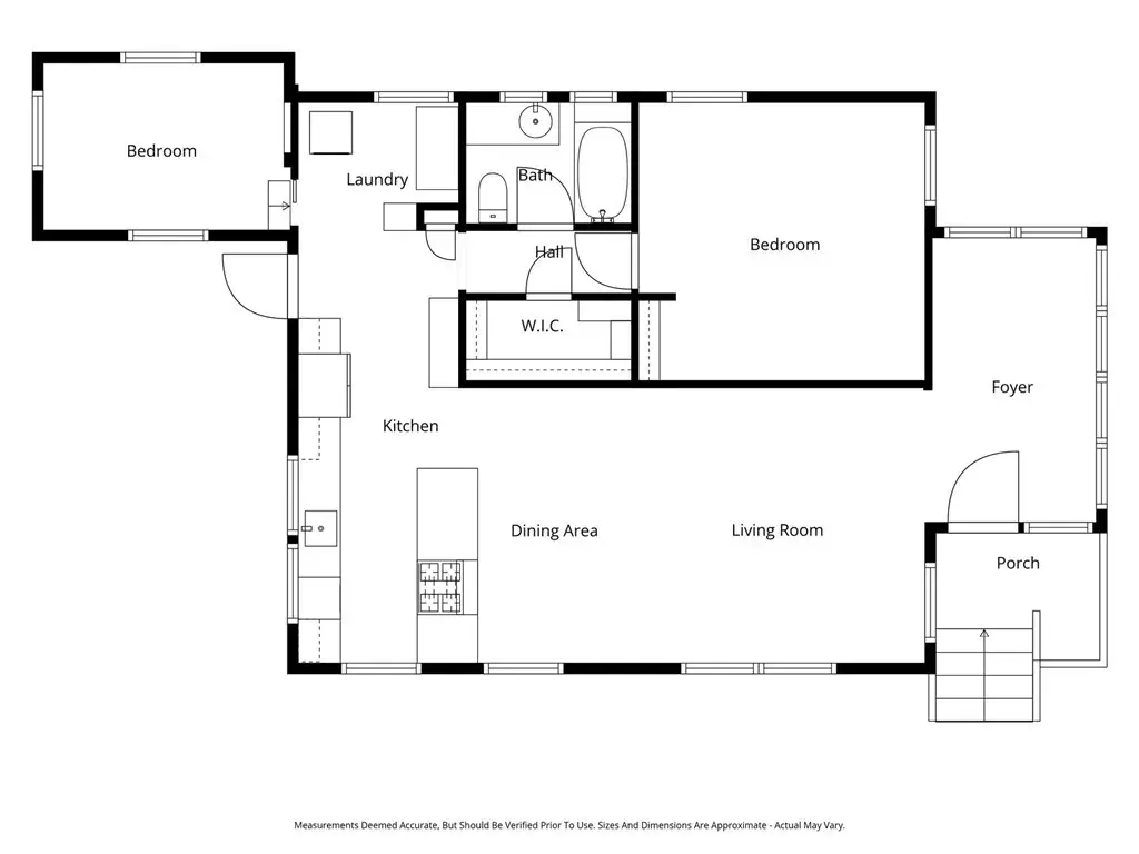
Rare development opportunity on a street-to-street, nearly 1/3-acre parcel tucked away on a quiet cul-de-sac just steps from downtown Atascadero, offering strong current usability with long-term flexibility. The property provides SB9 eligibility once connected to sewer, creating the potential to split into two parcels, each potentially allowing a single-family home and an ADU (buyer to verify possible uses with the appropriate local entities). Rear gated access allows for RV or boat parking, while two separate front driveways offer abundant parking and support future ADU, guest house, or expansion possibilities. At the heart of the property is a charming, well-maintained 2-bedroom, 1-bathroom, 1,042± sq ft home that blends classic character with thoughtful modern updates. The inviting open floorplan features an updated kitchen that flows into the living and dining areas, creating a bright, comfortable space for everyday living. A cheerful sunroom adds versatility—perfect for relaxing, working from home, or enjoying morning coffee while overlooking mature oak trees. A detached garage provides additional storage and major systems including the roof, windows, septic, HVAC, solar, and plumbing have all been updated within the last five years, offering peace of mind today while preserving future potential. Enjoy nearby downtown living in a peaceful neighborhood setting, less than 45 minutes to Central Coast beaches, three local lakes, and the renowned Paso Robles Wine Country.
Current real estate data for Single Family in Atascadero as of Feb 03, 2026
84
Single Family Listed
46
Avg DOM
380
Avg $ / SqFt
$594,631
Avg List Price
Property Details
Price:
$724,900
MLS #:
NS26009376
Status:
Active
Beds:
2
Baths:
1
Type:
Single Family
Subtype:
Single Family Residence
Neighborhood:
atscatascadero
Listed Date:
Jan 27, 2026
Finished Sq Ft:
1,042
Lot Size:
13,500 sqft / 0.31 acres (approx)
Year Built:
1945
Schools
School District:
Atascadero Unified
Interior
Bathrooms
1 Full Bathroom
Cooling
CA
Heating
CF
Laundry Features
IR
Exterior
Community Features
FHL
Other Structures
SH
Parking Spots
1
Financial
Map
Contact Us
Mortgage Calculator
Community
- Address6505 Country Club Atascadero CA
- CityAtascadero
- CountySan Luis Obispo
- Zip Code93422
Subdivisions in Atascadero
Property Summary
- 6505 Country Club Atascadero CA is a Single Family for sale in Atascadero, CA, 93422. It is listed for $724,900 and features 2 beds, 1 baths, and has approximately 1,042 square feet of living space, and was originally constructed in 1945. The current price per square foot is $696. The average price per square foot for Single Family listings in Atascadero is $380. The average listing price for Single Family in Atascadero is $594,631. To schedule a showing of MLS#ns26009376 at 6505 Country Club in Atascadero, CA, contact your Outland and Associates / JoAnn Outland agent at 8054417754.
Similar Listings Nearby
Full-time Real Estate Broker, sold 1400+ Properties in SLO and SBC County. 40+ years of local real estate knowledge and experience. I understand each sale is about you and your goals. I know as we get older, we don’t have time to make up for any mistakes especially when it comes to one the most significant investments. I care about my clients and work very hard to share my knowledge and protect you along the way. I place the appropriate verbiage in the listing and listing agreement depending…
More About JoAnn
Courtesy of Oaks to Ocean Real Estate. Disclaimer: All data relating to real estate for sale on this page comes from the Broker Reciprocity (BR) of the California Regional Multiple Listing Service. Detailed information about real estate listings held by brokerage firms other than Outland and Associates / JoAnn Outland include the name of the listing broker. Neither the listing company nor Outland and Associates / JoAnn Outland shall be responsible for any typographical errors, misinformation, misprints and shall be held totally harmless. The Broker providing this data believes it to be correct, but advises interested parties to confirm any item before relying on it in a purchase decision. Copyright 2026. California Regional Multiple Listing Service. All rights reserved. 6505 Country Club
Atascadero, CA
































