2300 El Camino Real is prime second floor office space located in the Mission Oaks Shopping Plaza that is anchored by Big 5, Grocery Outlet, Dollar Tree, T Mobile, Furniture and Mattress for Less, NCI Thrift Store, Wing Stop and Subway. Zoned Commercial Retail allowing for a variety of uses, this highly visible retail space provides excellent Highway 101 visibility and access off the Del Rio Road interchange where there is a lot of new Development happening in North Atascadero.
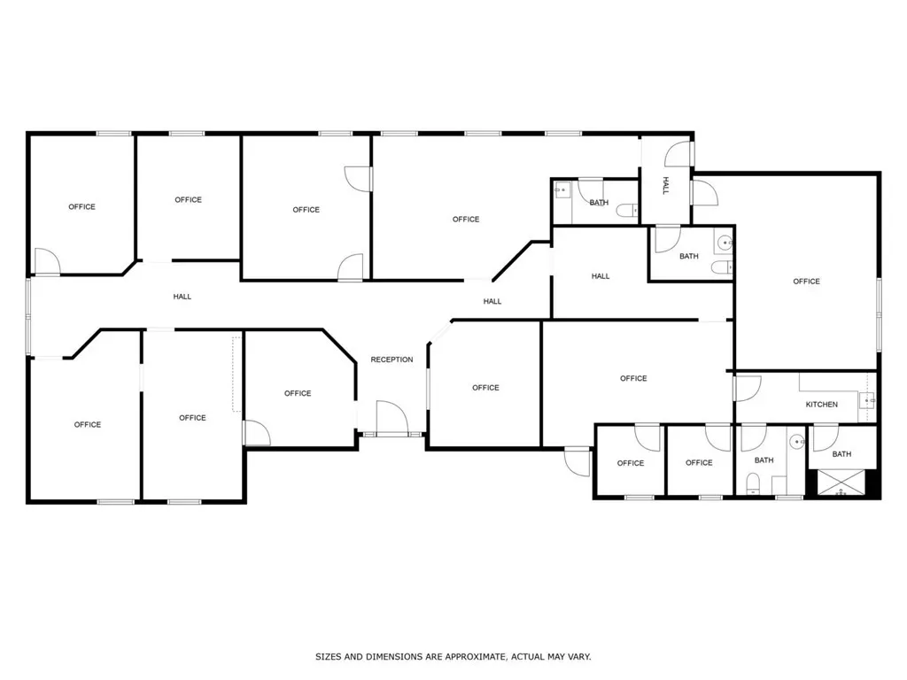
Approximately 3,088 SF consisting multiple office and work stations, a kitchenette/ break area, 3 restrooms, a separate shower, and excellent parking. Bring your idea to life in this empty space. $1.00 per sf + NNN (NNN estimated at $.48 per sf) Call today for a showing!
Approximately 3,088 SF consisting multiple office and work stations, a kitchenette/ break area, 3 restrooms, a separate shower, and excellent parking. Bring your idea to life in this empty space. $1.00 per sf + NNN (NNN estimated at $.48 per sf) Call today for a showing!
Current real estate data for Single Family in Atascadero as of Apr 24, 2026
117
Single Family Listed
172
Avg DOM
444
Avg $ / SqFt
$710,246
Avg List Price
Property Details
Price:
$0
MLS #:
NS24041545
Status:
Active
Beds:
0
Baths:
0
Type:
Single Family
Subtype:
Retail
Neighborhood:
atscatascadero
Listed Date:
Feb 29, 2024
Total Sq Ft:
3,089
Lot Size:
3,100 sqft / 0.07 acres (approx)
Schools
Interior
Exterior
Financial
Map
Contact Us
Mortgage Calculator
Community
- Address2300 El Camino Real Atascadero CA
- CityAtascadero
- CountySan Luis Obispo
- Zip Code93422
Subdivisions in Atascadero
Property Summary
- 2300 El Camino Real Atascadero CA is a Single Family for sale in Atascadero, CA, 93422. It is listed for $0 and features 0 beds, 0 baths, and has approximately 0 square feet of living space.The average price per square foot for Single Family listings in Atascadero is $444. The average listing price for Single Family in Atascadero is $710,246. To schedule a showing of MLS#ns24041545 at 2300 El Camino Real in Atascadero, CA, contact your Outland and Associates / JoAnn Outland agent at 8054417754.
Similar Listings Nearby
Full-time Real Estate Broker, sold 1400+ Properties in SLO and SBC County. 40+ years of local real estate knowledge and experience. I understand each sale is about you and your goals. I know as we get older, we don’t have time to make up for any mistakes especially when it comes to one the most significant investments. I care about my clients and work very hard to share my knowledge and protect you along the way. I place the appropriate verbiage in the listing and listing agreement depending…
More About JoAnn
Courtesy of Pacifica Commercial Realty. Disclaimer: All data relating to real estate for sale on this page comes from the Broker Reciprocity (BR) of the California Regional Multiple Listing Service. Detailed information about real estate listings held by brokerage firms other than Outland and Associates / JoAnn Outland include the name of the listing broker. Neither the listing company nor Outland and Associates / JoAnn Outland shall be responsible for any typographical errors, misinformation, misprints and shall be held totally harmless. The Broker providing this data believes it to be correct, but advises interested parties to confirm any item before relying on it in a purchase decision. Copyright 2026. California Regional Multiple Listing Service. All rights reserved. 2300 El Camino Real
Atascadero, CA














































