Briar Bluff CR
Thousand Oaks, CA, 91360
$1,999,999
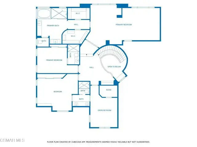
*Sellers will consider buying down the interest rate by 1% for first year using our preferred lender.* Welcome to 331 Briar Bluff Circle–a gorgeous 4-bedroom, 4-bath home located on a quiet cul-de-sac with a main floor dedicated office (next to a closet and full bathroom), built in 1999 and lovingly maintained by its original owners. Set on over an acre in the scenic hills of Thousand Oaks with a level main front and backyard, this 3,608 sq ft home offers exceptional indoor-outdoor living with lush landscaping, flagstone hardscaping, garden lighting, a resort-style pool and spa, outdoor kitchen with built-in sink, grill, storage, refrigerator and bar-top umbrella seating area. The upper tier includes a sunset-view patio overlooking Thousand Oaks, play yard, and horseshoe pit–ideal for entertaining or future expansion such as an ADU or sport court. Back down the flagstone steps to the backyard are 3 patios-1 large patio attached to the home with a patio cover over a dining space and outdoor family room. The other 2 patios are attached to the pool and elevated spa deck-one with a fire pit. These areas are enhanced with gated side yards with an arched vine covered walkway through a topiary and rose garden and a gated side yard–perfect for pets. And not to miss the vine covered gazebo in the front yard -perfect for gazing at the unobstructed sunsets. Inside, enjoy wide-plank hardwood floors and newer carpet on the main floor with a formal dining room open to a light and airy living room with tons of windows, a roomy open concept kitchen with granite countertops, large island, upgraded cabinetry, large built in ovens, butler’s pantry with wine refrigerator, open to a another spacious dining area and family room with a gas fireplace next to a laundry/mud room conveniently located by the garage and door to the side yard. Upstairs are 4 generous bedrooms (2 bedrooms with walk-in closets) with a large loft area including a double linen cabinet and 3 elevated styled full bathrooms. The huge, luxurious primary suite with a sitting room over looks a gorgeous backyard and includes 2 walk-in closets next to a new spacious, well appointed bathroom with large stone tile throughout, new vanities with quartz countertops, a large walk-in shower with glass surround, a deep soaking tub all with updated lighting and bathroom hardware. 10 and 15 foot ceilings throughout the home with framed windows in main areas and primary spaces along with sleek crown molding. Thoughtful upgrades like a Ring doorbell and cameras, a security system, battery back-up automated garage door opener and assumable lease solar panels ($204/mo., cuts bill down to zero) enhance comfort and efficiency. Every interior room has had renovated touches! Bordering Wildwood Park trails and open space, this one-of-a-kind home blends privacy, elegance, and everyday convenience.
Current real estate data for Single Family in Thousand Oaks as of Nov 17, 2025
123
Single Family Listed
71
Avg DOM
456
Avg $ / SqFt
$1,694,510
Avg List Price
Property Details
Price:
$1,999,999
MLS #:
225001862
Status:
Active
Beds:
4
Baths:
4
Type:
Single Family
Subtype:
Single Family Residence
Neighborhood:
tow
Listed Date:
Apr 16, 2025
Finished Sq Ft:
3,608
Lot Size:
46,565 sqft / 1.07 acres (approx)
Year Built:
1999
Schools
School District:
Conejo Valley Unified
Interior
Appliances
DW, GD, RF, TC, GAS, DO, HOD
Bathrooms
4 Full Bathrooms
Cooling
CA
Flooring
CARP
Heating
FA
Laundry Features
GAS, IR, IN
Exterior
Architectural Style
MED
Construction Materials
STC
Parking Spots
3
Roof
TLE
Security Features
SD, COD
Financial
HOA Fee
$300
HOA Frequency
ANU
Map
Contact Us
Mortgage Calculator
Community
- AddressBriar Bluff CR Thousand Oaks CA
- CityThousand Oaks
- CountyVentura
- Zip Code91360
Subdivisions in Thousand Oaks
- Cal Classics-102
- Cambria/Rancho Conejo 397
- Camelot 595
- Cameo-103
- Carlisle Road-767 – 767
- Carriage Square Estates-561 – 561
- Casa De Oaks 604
- Casa De Oaks-604 – 604
- Chantelcair 603
- Cobblestone/Lang Ranch 624
- Conejo Country Homes 500
- Conejo Country Homes-500
- Conejo Country Homes-500 – 500
- Conejo Hills 302
- Conejo Hills-302 – 1002562
- Conejo Oaks 502
- Conejo Oaks-502
- Conejo Oaks-502 – 502
- Cresta Montanosa-369 – 369
- custom – 4179
- Custom NR-736 – 736
- Eagleridge-612 – 612
- Eichler-304
- Eichler-304 – 304
- Equestrian Trails 373
- Falconridge-574 – 574
- Falconview-606 – 606
- Fieldstone – FS
- Fountainwood East-596 – 596
- Green Knolls-370 – 1003942
- Greenridge 306
- Greenwich Village 589
- Greenwich Village-589 – 589
- Hill Crest Park 582
- Hill Crest Park-582
- Hillcrest Terrace-570 – 570
- Horizon Hills 307
- Horizon Hills-307 – 307
- Kensington Park NR-787 – 787
- Kevington 513
- Kevington-513 – 513
- Lake Sherwood-762 – 762
- Los Robles Townhomes-332 – 1003172
- Lynn Oaks-311
- Lynn Ranch 312
- Lynn Ranch-312
- Lynn Ranch-312 – 1002772
- Lynnmere-383 – 1004202
- Meadow View 345
- Meadow Wood-610 – 1005712
- Meadows Wood 610
- Monte Sereno 372
- Montecito/Rancho Conejo – 399 – 1004502
- North Oaks Condos 382
- Northwood Townhomes I 516
- Northwood Townhomes I-516 – 1005282
- Oakbrook Grupe-579 – 579
- Oakbrook Patio 520
- Oakbrook Terrace-541 – 541
- Oakbrook Townhomes – 518 – 1005302
- Oaknoll Villas 314
- Oaknoll Villas-314 – 1002792
- Old Town – OLDT
- ParkOaks-524 – 1005372
- Parkview Condos-187
- Racqet Club Villas 317
- Shadow Oaks
- Shadow Oaks 318
- Sherwood Country Estates-782 – 782
- Starview 528
- Starview-528 – 1005412
- Summerfield 321
- Summerfield East 601
- Summerfield East-601
- Summit at Lange Ranch-615 – 1005792
- Summit House Ranch 339
- Sunset Conejo-529
- Sunset Hills 530
- Sunset Hills/Braemar 605
- Sunset Oaks/Brock-573 – 573
- Sunset Vistas-517 – 1005292
- Symphony-552
- Tamara-531
- Thunderbird Mobile Home Pk-547 – 547
- Trentwood/Sherwood TN/HM-790 – 1005972
- Twin Oaks 563
- Twin Palm Mobile Homes Pk-569 – 569
- Unknown 999
- Unknown-999
- Ventu Park-124 – 124
- Ventu Villa Mobile Home-178 – 1000952
- Verdigris 614
- Verdigris-614 – 1005772
- Waverly Heights 533
- West Hills-554 – 554
- Westlake Vistas 635
- Wildflower 331
- Wildwood 323
- Wildwood Condos 333
- Wildwood Condos-333 – 1003202
- Wildwood Terrace 325
- Windrose Pointe-144
- Woodlands
- Woodridge Estates-630 – 1005862
Property Summary
- Briar Bluff CR Thousand Oaks CA is a Single Family for sale in Thousand Oaks, CA, 91360. It is listed for $1,999,999 and features 4 beds, 4 baths, and has approximately 3,608 square feet of living space, and was originally constructed in 1999. The current price per square foot is $554. The average price per square foot for Single Family listings in Thousand Oaks is $456. The average listing price for Single Family in Thousand Oaks is $1,694,510. To schedule a showing of MLS#225001862 at Briar Bluff CR in Thousand Oaks, CA, contact your Outland and Associates / JoAnn Outland agent at 8054417754.
Similar Listings Nearby
Full-time Real Estate Broker, sold 1400+ Properties in SLO and SBC County. 40+ years of local real estate knowledge and experience. I understand each sale is about you and your goals. I know as we get older, we don’t have time to make up for any mistakes especially when it comes to one the most significant investments. I care about my clients and work very hard to share my knowledge and protect you along the way. I place the appropriate verbiage in the listing and listing agreement depending…
More About JoAnn
Courtesy of Real Brokerage Technologies. Disclaimer: All data relating to real estate for sale on this page comes from the Broker Reciprocity (BR) of the California Regional Multiple Listing Service. Detailed information about real estate listings held by brokerage firms other than Outland and Associates / JoAnn Outland include the name of the listing broker. Neither the listing company nor Outland and Associates / JoAnn Outland shall be responsible for any typographical errors, misinformation, misprints and shall be held totally harmless. The Broker providing this data believes it to be correct, but advises interested parties to confirm any item before relying on it in a purchase decision. Copyright 2025. California Regional Multiple Listing Service. All rights reserved. Briar Bluff CR
Thousand Oaks, CA






































































































