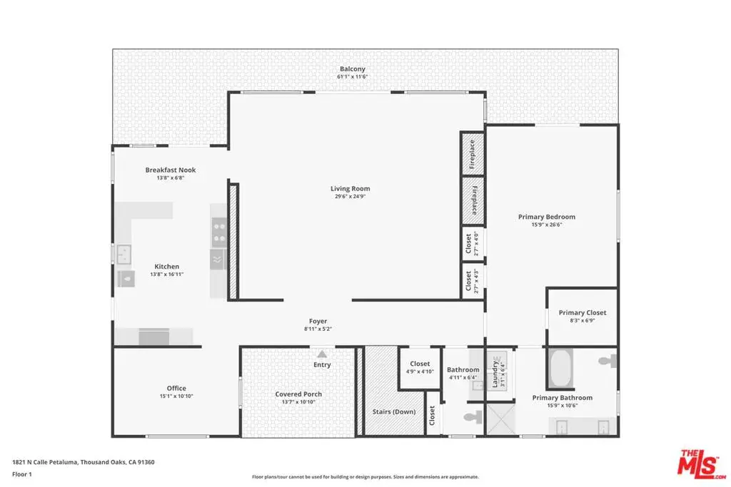
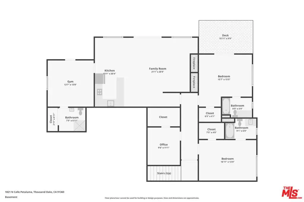
Privately set on an expansive flag lot of over 30,056 sq ft in the exclusive Lynn Ranch of Thousand Oaks, this exceptional view residence offers approximately 4,160 sq ft of living space. A long private driveway leads to a gated courtyard entry, creating a true sense of seclusion and arrival. The home features four bedrooms and four and one-half bathrooms, including three full baths upstairs, a three-quarter bath downstairs, and a separate powder room. Designed to capture breathtaking views from nearly every room, the property showcases three fireplaces, Saltillo terracotta tile flooring, and expansive indoor-outdoor living. A generous balcony spans approximately 65 feet and offers sweeping 270-degree views. The primary suite is ideally positioned on the main living level and includes a spacious bathroom with a dedicated washer and dryer discreetly located behind the closet. An additional washer and dryer hookup is located downstairs. Recent upgrades include a new roof in 2023, new water heater, and newly resurfaced pebble pool in 2023, with pool equipment appearing newer. The property also benefits from leased solar panels installed approximately 15 years ago. A three-car garage complements the property. The downstairs level includes an added kitchen, bathroom, and washer and dryer setup within existing space. An outstanding opportunity for buyers seeking privacy, dramatic views, and a substantial hillside setting.
Current real estate data for Single Family in Thousand Oaks as of Apr 10, 2026
187
Single Family Listed
67
Avg DOM
454
Avg $ / SqFt
$1,726,102
Avg List Price
Property Details
Price:
$2,499,999
MLS #:
26641543
Status:
Active
Beds:
4
Baths:
5
Type:
Single Family
Subtype:
Single Family Residence
Neighborhood:
towthousandoakswest
Listed Date:
Feb 4, 2026
Finished Sq Ft:
4,160
Total Sq Ft:
4,160
Lot Size:
30,056 sqft / 0.69 acres (approx)
Year Built:
1975
Schools
School District:
Conejo Valley Unified
Interior
Appliances
DW, GD, RF, ES, GO, BI, DO
Bathrooms
3 Full Bathrooms, 1 Three Quarter Bathroom, 1 Half Bathroom
Cooling
CA
Flooring
TILE, WOOD
Heating
CF, FIR
Interior Features
RECL, TRAK, LRBA, CC
Laundry Features
IN, SEE, ICL, UL
Levels
U
Exterior
Architectural Style
SPN
Common Walls
NCW
Construction Materials
STC
Direction Faces
N
Fencing
CH, PRV
Parking Spots
10
Parking Total
10
Patio And Porch Features
CO, DK, PO, POF
Security Features
SD, COD
Spa Features
HT, IG
View
CN, HI, MT, RV, STM
Window Features
BLI, SHT
Financial
Map
Contact Us
Mortgage Calculator
Community
- Address1821 Calle Petaluma Thousand Oaks CA
- CityThousand Oaks
- CountyVentura
- Zip Code91360
Subdivisions in Thousand Oaks
- Camelot 595
- Carlisle Road-767 – 767
- Chanteclair-603 – 603
- Conejo Country Homes Deluxe 501
- Conejo Country Homes-500 – 500
- Conejo Hills 302
- Conejo Hills-302 – 1002562
- Cresta Montanosa-369 – 369
- Greenridge – GNR
- Greenridge 306
- Greenwich Village 589
- Hillview 512
- Horizon Hills-307 – 307
- Kevington-513 – 513
- Lake Sherwood-762 – 762
- Las Flores Villas – 560
- Los Robles Fairways Estate-379 – 1004112
- Los Robles Townhomes 332
- Lynn Estates 310
- Lynn Oaks 311
- Lynn Ranch 312
- Lynn Ranch-312 – 1002772
- LynnBrooke-380 – 1004152
- Meadows Wood 610
- Monte Sereno 372
- Northwood Townhomes I-516 – 1005282
- Northwood Townhomes II-557 – 557
- Oakbrook Townhomes – 518 – 1005302
- Oaknoll Villas 314
- Oaknoll Villas-314 – 1002792
- Old Meadows-522 – 522
- Old Town – OLDT
- Racquet Club Villas-317 – 1002862
- Shadow Oaks 318
- Sherwood Country Estates-782 – 782
- Summerfield 321
- Summit at Lange Ranch-615 – 1005792
- Sunset Vistas-517 – 1005292
- Unknown-999
- Ventu Villa Mobile Home-178 – 1000952
- Verdigris 614
- Westlake Vistas-635 – 635
- Wildwood – 3936
- Wildwood 323
- Wildwood Condos-333 – 1003202
- Wildwood/Indian Ridge-328 – 1003082
- Woodridge 630
Property Summary
- 1821 Calle Petaluma Thousand Oaks CA is a Single Family for sale in Thousand Oaks, CA, 91360. It is listed for $2,499,999 and features 4 beds, 5 baths, and has approximately 4,160 square feet of living space, and was originally constructed in 1975. The current price per square foot is $601. The average price per square foot for Single Family listings in Thousand Oaks is $454. The average listing price for Single Family in Thousand Oaks is $1,726,102. To schedule a showing of MLS#26641543 at 1821 Calle Petaluma in Thousand Oaks, CA, contact your Outland and Associates / JoAnn Outland agent at 8054417754.
Similar Listings Nearby
Full-time Real Estate Broker, sold 1400+ Properties in SLO and SBC County. 40+ years of local real estate knowledge and experience. I understand each sale is about you and your goals. I know as we get older, we don’t have time to make up for any mistakes especially when it comes to one the most significant investments. I care about my clients and work very hard to share my knowledge and protect you along the way. I place the appropriate verbiage in the listing and listing agreement depending…
More About JoAnn
Courtesy of Keller Williams Beverly Hills. Disclaimer: All data relating to real estate for sale on this page comes from the Broker Reciprocity (BR) of the California Regional Multiple Listing Service. Detailed information about real estate listings held by brokerage firms other than Outland and Associates / JoAnn Outland include the name of the listing broker. Neither the listing company nor Outland and Associates / JoAnn Outland shall be responsible for any typographical errors, misinformation, misprints and shall be held totally harmless. The Broker providing this data believes it to be correct, but advises interested parties to confirm any item before relying on it in a purchase decision. Copyright 2026. California Regional Multiple Listing Service. All rights reserved. 1821 Calle Petaluma
Thousand Oaks, CA


































