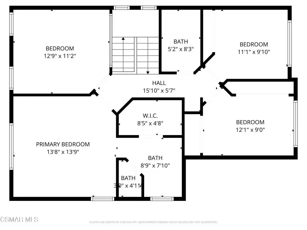
Welcome to this beautifully updated three bedroom, three bath home in the heart of Wood Ranch, where comfort, charm, and style create the perfect place to call your own. From the moment you step inside, rich laminate flooring and a striking accent wall create a warm and elegant first impression. The chef’s kitchen is designed to impress, with stainless steel appliances, quartz countertops, custom cabinetry, and gold-toned fixtures, opening to a spacious dining area and bright living room perfect for gathering with friends and family. Step outside to your private patio with built-in BBQ and planter boxes, or enjoy the bonus turfed side yard ideal for kids, pets, or a little gardening retreat. Upstairs, the primary suite is spacious and the primary bathroom offers dual sinks, a soaking tub, and a generous walk-in closet. You’ll also find two additional cozy bedrooms plus an enclosed loft, giving you the flexibility for a home office, playroom, or fourth bedroom. A convenient downstairs laundry room and direct-access two-car garage add everyday ease. With resort style community amenities including pool, spa, and wading pool, plus nearby trails for hiking and biking, this home offers not only sophistication and functionality but also the coveted lifestyle that makes Wood Ranch so desirable.
Current real estate data for Single Family in Simi Valley as of Jan 02, 2026
132
Single Family Listed
80
Avg DOM
361
Avg $ / SqFt
$789,687
Avg List Price
Property Details
Price:
$759,000
MLS #:
225004930
Status:
Pending
Beds:
3
Baths:
3
Type:
Single Family
Subtype:
Single Family Residence
Subdivision:
Sonoma – SONM
Neighborhood:
swrsimiwoodranch
Listed Date:
Dec 23, 2025
Finished Sq Ft:
1,493
Lot Size:
1,493 sqft / 0.03 acres (approx)
Year Built:
1999
Schools
Interior
Appliances
DW, GD, MW, GAS
Bathrooms
2 Full Bathrooms, 1 Half Bathroom
Cooling
CA
Flooring
LAM, CARP
Heating
GAS, CF
Laundry Features
IR, IN
Exterior
Architectural Style
TRD
Construction Materials
STC
Parking Spots
2
Security Features
SD, COD
Financial
HOA Fee
$140
HOA Fee 2
$130
HOA Frequency
MO
Map
Contact Us
Mortgage Calculator
Community
- Address618 Kirkside PL Simi Valley CA
- SubdivisionSonoma – SONM
- CitySimi Valley
- CountyVentura
- Zip Code93065
Subdivisions in Simi Valley
- Alamo Court-302 – 302
- Alpine Barnes-252 – 252
- Alpine Texas-101 – 101
- Belwood-102 – 102
- Botanica Long Cyn 415
- Bridle Path New-316 – 316
- Bridle Path SDLBK-317
- Bridle Path SDLBK-317 – 317
- Bridle Path-103 – 103
- Case Flores 460
- Case Flores-460 – 1004942
- Country Lane 106
- Coventry Court ATT 284
- Crossroads on Cochran-421 – 1004672
- custom – 4179
- Emerald Point 469
- Friendly Village-240 – 240
- Groves 121
- Hadleigh of South Hills 450
- High Meadows 364
- Hollow Hills 126
- Hollow Hills-126 – 126
- Indian Hills Ridge-309 – 309
- Kingspark galena-131 – 1000412
- Laural Wood Long Canyon 448
- Legacy Collection 363
- Legacy Collection-363 – 363
- Marlborough Villas-217 – 1001532
- Meadow 1st & Royal-466 – 466
- Meadowbrooks ATT 222
- Meadowbrooks-222 – 1001592
- Milestone 434
- Montara Bigelow 140
- Mountain Valley RC 141
- New Monterey Texas 265
- North Gate-471 – 471
- Not Applicable – 1007242
- Oaktree 147
- Park Lane W ATT 228
- Parklane W-228 – 1001662
- Paseo Del Sol – 479 – 1000692
- Pride W-319 – 319
- Ranco Sequoia-158 – 1000742
- Royal Palce ATT 337
- Sandalwood 162
- Santa Susana Homes Rebecca 165
- Santa Susana Knolls 166
- Santa Susana Knolls-166 – 1000832
- Silverthorne 446
- Simi Country Estates Mobile 243
- Simi Park North 169
- Simi Park North-169 – 1000862
- Sinaloa Villas ATT 232
- Sinaloa Villas-232 – 1001712
- Springtime ATT 344
- Stonegate Fletcher 314
- Sycamore Terrace 235
- The Crest @ Wildhorse Canyon-477 – 477
- Tom Paul W 133
- Tom Paul W-133 – 1000432
- Unknown-999
- Valley View Estates 345
- Valley Vista-184 – 1001022
- Valley West Berylwood 275
- Valley West Far West-276 – 1002252
- White Cloud 443
- Windmill Long Cyn 418
Property Summary
- Located in the Sonoma – SONM subdivision, 618 Kirkside PL Simi Valley CA is a Single Family for sale in Simi Valley, CA, 93065. It is listed for $759,000 and features 3 beds, 3 baths, and has approximately 1,493 square feet of living space, and was originally constructed in 1999. The current price per square foot is $508. The average price per square foot for Single Family listings in Simi Valley is $361. The average listing price for Single Family in Simi Valley is $789,687. To schedule a showing of MLS#225004930 at 618 Kirkside PL in Simi Valley, CA, contact your Outland and Associates / JoAnn Outland agent at 8054417754.
Similar Listings Nearby
Full-time Real Estate Broker, sold 1400+ Properties in SLO and SBC County. 40+ years of local real estate knowledge and experience. I understand each sale is about you and your goals. I know as we get older, we don’t have time to make up for any mistakes especially when it comes to one the most significant investments. I care about my clients and work very hard to share my knowledge and protect you along the way. I place the appropriate verbiage in the listing and listing agreement depending…
More About JoAnn
Courtesy of Keller Williams Westlake Village. Disclaimer: All data relating to real estate for sale on this page comes from the Broker Reciprocity (BR) of the California Regional Multiple Listing Service. Detailed information about real estate listings held by brokerage firms other than Outland and Associates / JoAnn Outland include the name of the listing broker. Neither the listing company nor Outland and Associates / JoAnn Outland shall be responsible for any typographical errors, misinformation, misprints and shall be held totally harmless. The Broker providing this data believes it to be correct, but advises interested parties to confirm any item before relying on it in a purchase decision. Copyright 2026. California Regional Multiple Listing Service. All rights reserved. 618 Kirkside PL
Simi Valley, CA












































