Current real estate data for Single Family in Santa Maria as of Jan 02, 2026
113
Single Family Listed
93
Avg DOM
360
Avg $ / SqFt
$629,675
Avg List Price
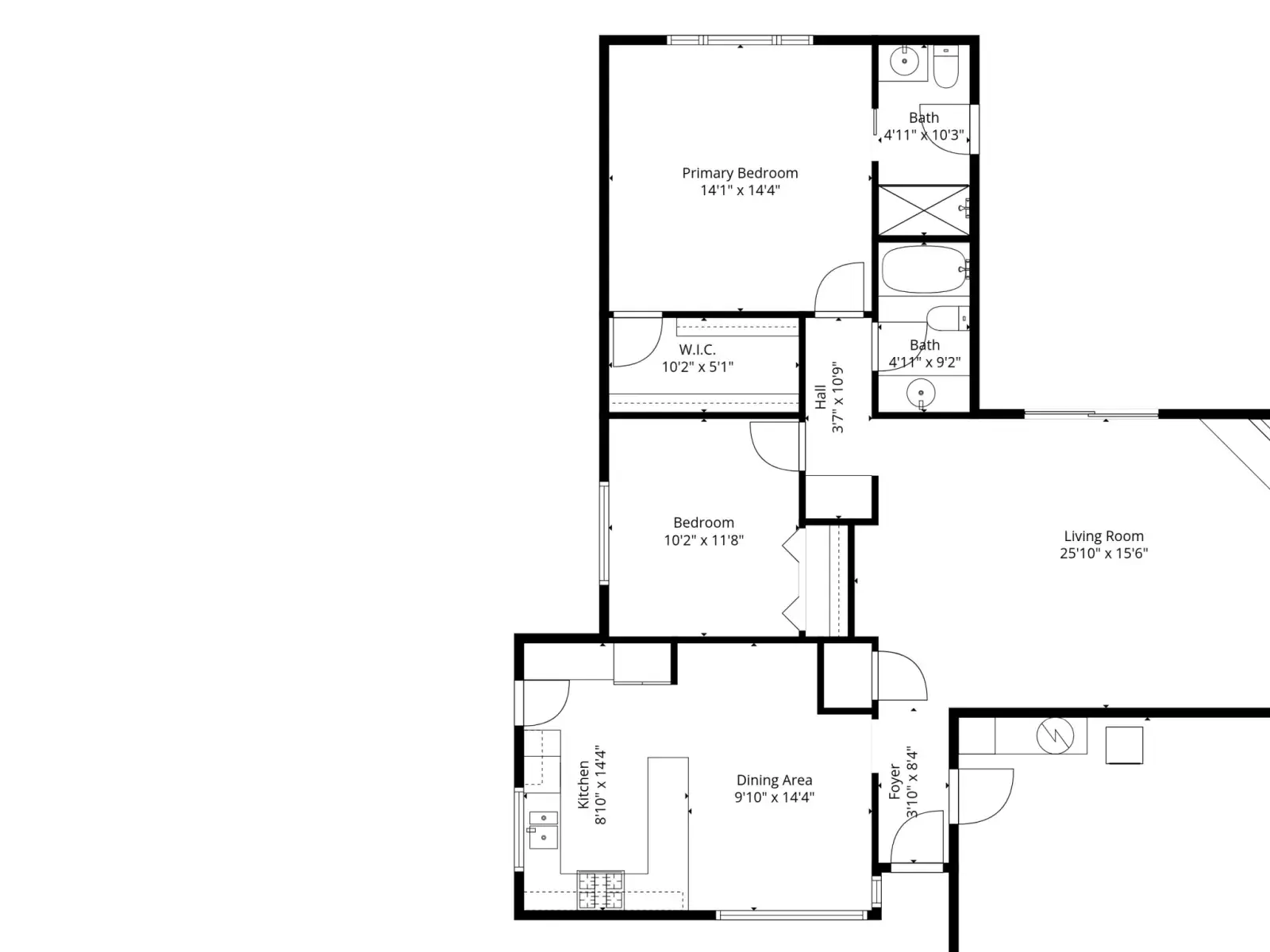
Property Details
Price:
$680,000
MLS #:
25002395
Status:
Active
Beds:
2
Baths:
2
Type:
Single Family
Subtype:
Single Family Residence
Listed Date:
Jan 1, 2026
Finished Sq Ft:
1,300
Lot Size:
8,712 sqft / 0.20 acres (approx)
Year Built:
1983
Schools
Interior
3/4 Baths
1
Air Conditioning
Ceiling Fans
Appliances Included
Oven/Range- Gas, Dryer, Refrigerator, Water Softener, Washer, Garbage Disp, Dishwasher
Dining Room Desc
Dining Area
Flooring
Laminate
Full Baths
1
Heating
Forced Air
Interior Features
Pantry, Dual Pn Windows
Laundry
Laundry in Garage
Exterior
Additional Buildings
Tool Shed
Covered Parking
Attached Garage
Exterior
Stucco
Exterior Features
Fenced Yard, Patio
Foundation
Slab
Lot Characteristics
Level
Roof Description
Composition
Site Improvements
Paved Streets, Sidewalks, Cable Available, Street Lights, Curbs/Gutter
View
None
Financial
Green Features
None
Renewable Energy
None
Map
Contact Us
Mortgage Calculator
Community
- Address3942 Berrywood Drive Santa Maria CA
- CitySanta Maria
- CountySanta Barbara
- Zip Code93455
Subdivisions in Santa Maria
Property Summary
- 3942 Berrywood Drive Santa Maria CA is a Single Family for sale in Santa Maria, CA, 93455. It is listed for $680,000 and features 2 beds, 2 baths, and has approximately 1,300 square feet of living space, and was originally constructed in 1983. The current price per square foot is $523. The average price per square foot for Single Family listings in Santa Maria is $360. The average listing price for Single Family in Santa Maria is $629,675. To schedule a showing of MLS#25002395 at 3942 Berrywood Drive in Santa Maria, CA, contact your Outland and Associates / JoAnn Outland agent at 8054417754.
Similar Listings Nearby
Get Out There, A Simply Outgoing Approach to Life. James Outland Jr. is one of those rare people who simply has an outgoing approach to life. No matter the activity… from dune buggy riding to skydiving to motorcycling to riding the local Pismo Beach waves… James Outland Jr. approaches life with a “just get out there and do it” kind of attitude. A zest for Life. James’ zest for life is obviously apparent in his many exciting hobbies. In his spare time, he loves riding dune buggies or hi…
More About James
Courtesy of LPT Realty Inc.. Disclaimer: All data relating to real estate for sale on this page comes from the Broker Reciprocity (BR) of the California Regional Multiple Listing Service. Detailed information about real estate listings held by brokerage firms other than Outland and Associates / JoAnn Outland include the name of the listing broker. Neither the listing company nor Outland and Associates / JoAnn Outland shall be responsible for any typographical errors, misinformation, misprints and shall be held totally harmless. The Broker providing this data believes it to be correct, but advises interested parties to confirm any item before relying on it in a purchase decision. Copyright 2026. California Regional Multiple Listing Service. All rights reserved. 3942 Berrywood Drive
Santa Maria, CA






























