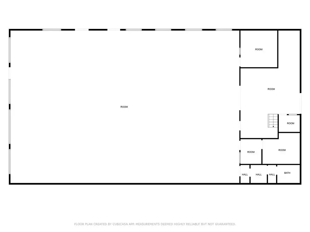
Just off North Broadway, this retail/commercial warehouse has 5,000 sq. ft. of highly functional space available for purchase. This versatile building, being sold as-is, offers secured yard area in the rear of the building with a rollup door, 12 off street parking spaces, and alley access. This is a great opportunity to be a part of the exciting downtown revitalization. Zoning: C2; Downtown Specific Plan; Bungalow District. Property also has 2,151 sq. ft. of secure yard with alley access. Purchase price: $995,000.
Current real estate data for Commercial in Santa Maria as of Mar 31, 2026
16
Commercial Listed
241
Avg DOM
$3,946,156
Avg List Price
Property Details
Price:
$995,000
MLS #:
SC25075661
Status:
Active
Beds:
0
Baths:
0
Type:
Commercial
Subtype:
Warehouse
Neighborhood:
smnwsmnorthwest
Listed Date:
Aug 10, 2025
Total Sq Ft:
5,000
Lot Size:
14,375 sqft / 0.33 acres (approx)
Schools
Interior
Laundry Features
NO
Exterior
Financial
Map
Contact Us
Mortgage Calculator
Community
- Address115 W Chapel ST Santa Maria CA
- CitySanta Maria
- CountySanta Barbara
- Zip Code93458
Subdivisions in Santa Maria
Property Summary
- 115 W Chapel ST Santa Maria CA is a Commercial for sale in Santa Maria, CA, 93458. It is listed for $995,000 To schedule a showing of MLS#sc25075661 at 115 W Chapel ST in Santa Maria, CA, contact your Outland and Associates / JoAnn Outland agent at 8054417754.
Similar Listings Nearby
Full-time Real Estate Broker, sold 1400+ Properties in SLO and SBC County. 40+ years of local real estate knowledge and experience. I understand each sale is about you and your goals. I know as we get older, we don’t have time to make up for any mistakes especially when it comes to one the most significant investments. I care about my clients and work very hard to share my knowledge and protect you along the way. I place the appropriate verbiage in the listing and listing agreement depending…
More About JoAnn
Courtesy of McCarty Davis, Inc.. Disclaimer: All data relating to real estate for sale on this page comes from the Broker Reciprocity (BR) of the California Regional Multiple Listing Service. Detailed information about real estate listings held by brokerage firms other than Outland and Associates / JoAnn Outland include the name of the listing broker. Neither the listing company nor Outland and Associates / JoAnn Outland shall be responsible for any typographical errors, misinformation, misprints and shall be held totally harmless. The Broker providing this data believes it to be correct, but advises interested parties to confirm any item before relying on it in a purchase decision. Copyright 2026. California Regional Multiple Listing Service. All rights reserved. 115 W Chapel ST
Santa Maria, CA







