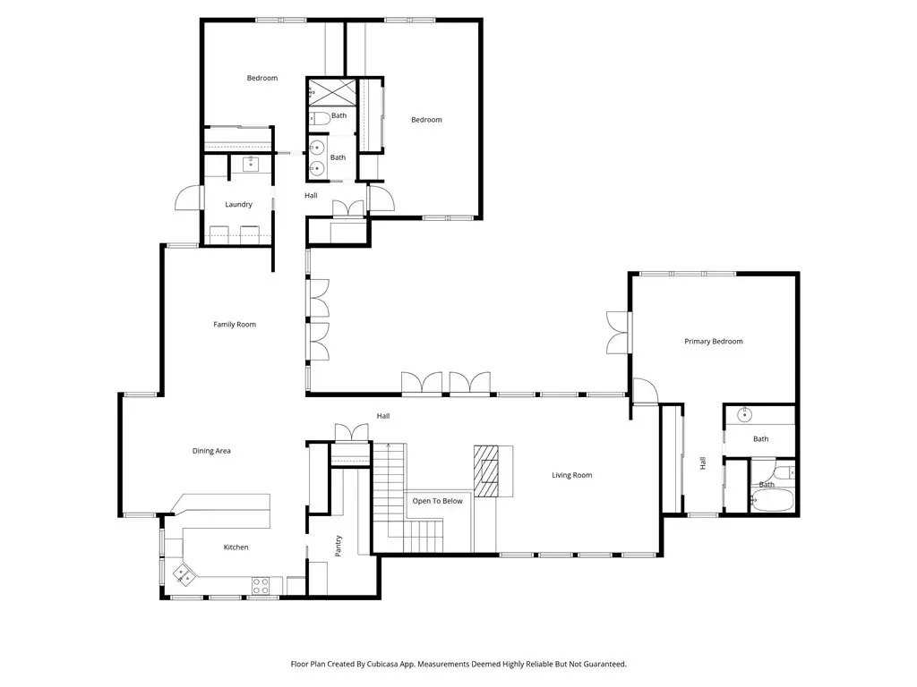
Located in one of San Luis Obispo’s most desirable neighborhoods, just minutes from downtown, San Luis Obispo High School, and Cal Poly, this custom-designed 3-bedroom, 3-bathroom home with an additional bonus room is on the market for the very first time.
Showcasing stunning views throughout, the home welcomes you at the entry with a versatile bonus room and ensuite bathroom—ideal for guests, a home office, or multi-generational living. Upstairs, soaring ceilings and dramatic floor-to-ceiling windows flood the home with natural light, creating an open and airy atmosphere. The kitchen features a large walk-in pantry and flows seamlessly into the dining and sitting areas, where French doors open to a spacious patio perfect for indoor-outdoor living.
One wing of the home includes a separate laundry room, two bedrooms, and a full bathroom. The opposite side offers a second living area with a cozy wood-burning fireplace, leading to the primary bedroom with its own ensuite bathroom. Thoughtfully designed with multiple living spaces and a versatile layout, this home offers comfort, privacy, and timeless appeal in a prime San Luis Obispo location.
Showcasing stunning views throughout, the home welcomes you at the entry with a versatile bonus room and ensuite bathroom—ideal for guests, a home office, or multi-generational living. Upstairs, soaring ceilings and dramatic floor-to-ceiling windows flood the home with natural light, creating an open and airy atmosphere. The kitchen features a large walk-in pantry and flows seamlessly into the dining and sitting areas, where French doors open to a spacious patio perfect for indoor-outdoor living.
One wing of the home includes a separate laundry room, two bedrooms, and a full bathroom. The opposite side offers a second living area with a cozy wood-burning fireplace, leading to the primary bedroom with its own ensuite bathroom. Thoughtfully designed with multiple living spaces and a versatile layout, this home offers comfort, privacy, and timeless appeal in a prime San Luis Obispo location.
Current real estate data for Single Family in San Luis Obispo as of Mar 11, 2026
203
Single Family Listed
137
Avg DOM
610
Avg $ / SqFt
$791,397
Avg List Price
Property Details
Price:
$1,900,000
MLS #:
PI26016841
Status:
Active
Beds:
3
Baths:
3
Type:
Single Family
Subtype:
Single Family Residence
Subdivision:
San Luis Obispo380
Neighborhood:
slosanluisobispo
Listed Date:
Feb 16, 2026
Finished Sq Ft:
2,774
Lot Size:
10,757 sqft / 0.25 acres (approx)
Year Built:
1974
Schools
School District:
San Luis Coastal Unified
Middle School:
Laguna
High School:
San Luis Obispo
Interior
Appliances
DW, RF
Bathrooms
3 Full Bathrooms
Cooling
NO
Flooring
LAM
Heating
FA
Laundry Features
IR
Exterior
Community Features
SDW, HIKI
Parking Spots
2
Financial
Map
Contact Us
Mortgage Calculator
Community
- Address2060 Skylark LN San Luis Obispo CA
- SubdivisionSan Luis Obispo(380)
- CitySan Luis Obispo
- CountySan Luis Obispo
- Zip Code93401
Subdivisions in San Luis Obispo
Property Summary
- Located in the San Luis Obispo(380) subdivision, 2060 Skylark LN San Luis Obispo CA is a Single Family for sale in San Luis Obispo, CA, 93401. It is listed for $1,900,000 and features 3 beds, 3 baths, and has approximately 2,774 square feet of living space, and was originally constructed in 1974. The current price per square foot is $685. The average price per square foot for Single Family listings in San Luis Obispo is $610. The average listing price for Single Family in San Luis Obispo is $791,397. To schedule a showing of MLS#pi26016841 at 2060 Skylark LN in San Luis Obispo, CA, contact your Outland and Associates / JoAnn Outland agent at 8054417754.
Similar Listings Nearby
Full-time Real Estate Broker, sold 1400+ Properties in SLO and SBC County. 40+ years of local real estate knowledge and experience. I understand each sale is about you and your goals. I know as we get older, we don’t have time to make up for any mistakes especially when it comes to one the most significant investments. I care about my clients and work very hard to share my knowledge and protect you along the way. I place the appropriate verbiage in the listing and listing agreement depending…
More About JoAnn
Courtesy of Central Coast Sotheby’s International Realty. Disclaimer: All data relating to real estate for sale on this page comes from the Broker Reciprocity (BR) of the California Regional Multiple Listing Service. Detailed information about real estate listings held by brokerage firms other than Outland and Associates / JoAnn Outland include the name of the listing broker. Neither the listing company nor Outland and Associates / JoAnn Outland shall be responsible for any typographical errors, misinformation, misprints and shall be held totally harmless. The Broker providing this data believes it to be correct, but advises interested parties to confirm any item before relying on it in a purchase decision. Copyright 2026. California Regional Multiple Listing Service. All rights reserved. 2060 Skylark LN
San Luis Obispo, CA






































