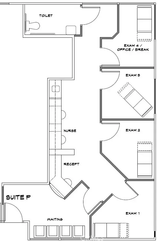
This suite is currently configured as open space but can be modified to reflect the attached floor plan, which can provide for up to four offices or rooms. The California Medical Center is conveniently located just off HWY 101 and is close to Cal Poly. There is excellent on-site parking.
Current real estate data for Single Family in San Luis Obispo as of Nov 17, 2025
83
Single Family Listed
49
Avg DOM
608
Avg $ / SqFt
$1,181,193
Avg List Price
Property Details
Price:
$0
MLS #:
SC25257816
Status:
Active
Beds:
0
Baths:
0
Type:
Single Family
Subtype:
Office
Neighborhood:
slo
Listed Date:
Nov 14, 2025
Total Sq Ft:
788
Lot Size:
47,045 sqft / 1.08 acres (approx)
Year Built:
1979
Schools
Interior
Exterior
Financial
Map
Contact Us
Mortgage Calculator
Community
- AddressCalifornia #P San Luis Obispo CA
- CitySan Luis Obispo
- CountySan Luis Obispo
- Zip Code93401
Subdivisions in San Luis Obispo
Property Summary
- California #P San Luis Obispo CA is a Single Family for sale in San Luis Obispo, CA, 93401. It is listed for $0 and features 0 beds, 0 baths, and has approximately 0 square feet of living space, and was originally constructed in 1979. The average price per square foot for Single Family listings in San Luis Obispo is $608. The average listing price for Single Family in San Luis Obispo is $1,181,193. To schedule a showing of MLS#sc25257816 at California #P in San Luis Obispo, CA, contact your Outland and Associates / JoAnn Outland agent at 8054417754.
Similar Listings Nearby
Get Out There, A Simply Outgoing Approach to Life. James Outland Jr. is one of those rare people who simply has an outgoing approach to life. No matter the activity… from dune buggy riding to skydiving to motorcycling to riding the local Pismo Beach waves… James Outland Jr. approaches life with a “just get out there and do it” kind of attitude. A zest for Life. James’ zest for life is obviously apparent in his many exciting hobbies. In his spare time, he loves riding dune buggies or hi…
More About James
Courtesy of Anderson & Senn Commercial Real Estate. Disclaimer: All data relating to real estate for sale on this page comes from the Broker Reciprocity (BR) of the California Regional Multiple Listing Service. Detailed information about real estate listings held by brokerage firms other than Outland and Associates / JoAnn Outland include the name of the listing broker. Neither the listing company nor Outland and Associates / JoAnn Outland shall be responsible for any typographical errors, misinformation, misprints and shall be held totally harmless. The Broker providing this data believes it to be correct, but advises interested parties to confirm any item before relying on it in a purchase decision. Copyright 2025. California Regional Multiple Listing Service. All rights reserved. California #P
San Luis Obispo, CA







