1239 S C ST
Oxnard, CA, 93033
$2,500,000
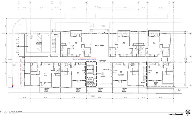
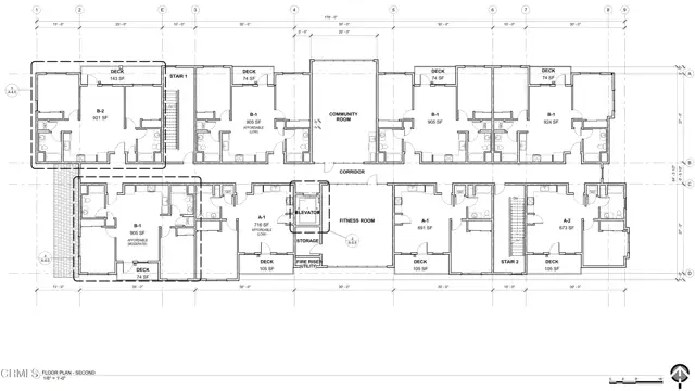
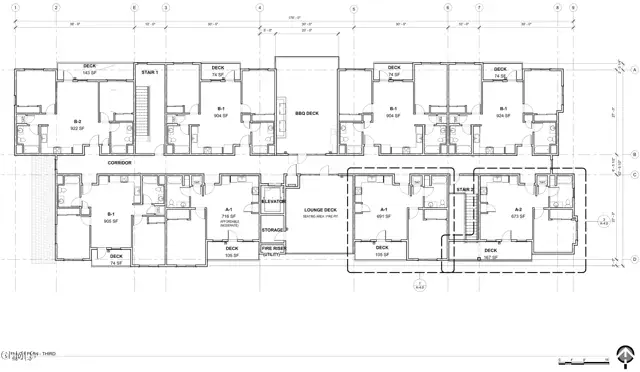
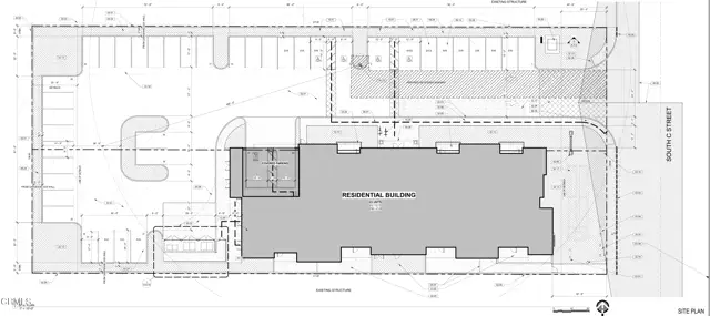
Attention Developers and Investors! A great opportunity acquire an entitled downtown Oxnard Property with approved plans for a three-story, 23-unit mixed-income multifamily development totaling 31,636 SF . The project merges two half-acre parcels into a nearly one-acre site, replacing an existing SFR with a thoughtfully designed residential community. Zoned R-2 Multiple Family ResidentialThe development offers a balanced unit mix, (9) 1BR units (665-717 SF) and (14) 2BR units (905-922 SF). Five of the units are designated affordable. Type V-A construction, and designed with accessibility in mind, featuring elevator service to all levels.Planned amenities include a ground-floor community lounge (563 SF), package and delivery center, second-floor community room (620 SF) and fitness center (551 SF), as well as third-floor outdoor decks (1,167 SF). Each residence will also enjoy a private patio or balcony.The project provides 41 parking spaces, including EV-ready and EV-charging stalls, along with bicycle racks, meeting both state and local sustainability requirements. Landscaped open space and on-site community features create an attractive living environment within walking distance of neighborhood services and schools.Tenants in the Existing residence generate $2650/month income. Sale includes plans, reports and city planning approvals.
Current real estate data for Single Family in Oxnard as of Apr 11, 2026
240
Single Family Listed
69
Avg DOM
457
Avg $ / SqFt
$1,022,460
Avg List Price
Property Details
Price:
$2,500,000
MLS #:
V1-31934
Status:
Active
Beds:
0
Baths:
0
Type:
Single Family
Subtype:
Commercial/Residential
Subdivision:
Village Townhomes – 4607
Neighborhood:
vc33oxnardsouthwestporthuenem
Listed Date:
Aug 22, 2025
Lot Size:
21,780 sqft / 0.50 acres (approx)
Year Built:
1915
Schools
Interior
Appliances
NO
Cooling
NO
Heating
WL
Laundry Features
NO
Exterior
Common Walls
NCW
Community Features
SDW
Fencing
BW, WD
Spa Features
NO
Financial
Map
Contact Us
Mortgage Calculator
Community
- Address1239 S C ST Oxnard CA
- SubdivisionVillage Townhomes – 4607
- CityOxnard
- CountyVentura
- Zip Code93033
Subdivisions in Oxnard
- Anacapa View Homes 1 247101
- Cabrillo Park Homes 1 – 229701
- Channel Island Waterfront Homes – 4846
- Cielo II – 5399
- College Estates 1 – 246601
- Greenbrook Estates 1 – 307801
- Harborwalk
- Harbour Island 1 – 413201
- Hollywood Beach – 0302
- Hollywood By The Sea – 0303
- Lemonwood Estates 1 – 209101
- Meadowlake MHP – 1002762
- Other – 0011
- Oxnard Estates 1 – 0364
- Oxnard Shores 01 – 127701
- Oxnard Shores 6 – 1216
- Oxnard: Other – 0031
- Oxnard: Other – 0033
- Oxnard: Other – 0035
- Pepperwood 5 – 3545
- Rancho De La Rosa 1 – 471401
- Riverpark – 535201
- Silverstrand Beach – 0308
- Sunrise Pointe/Sunset Cove 2 – 513602
- Wagon Wheel
- Westport at Mandalay Bay 1 – 519601
- Westport at Mandalay Bay 2 – 519602
- William Lyon Homes 1 – 522801
- Wooley Road Subdivision – 0341
Property Summary
- Located in the Village Townhomes – 4607 subdivision, 1239 S C ST Oxnard CA is a Single Family for sale in Oxnard, CA, 93033. It is listed for $2,500,000 and features 0 beds, 0 baths, and has approximately 0 square feet of living space, and was originally constructed in 1915. The average price per square foot for Single Family listings in Oxnard is $457. The average listing price for Single Family in Oxnard is $1,022,460. To schedule a showing of MLS#v1-31934 at 1239 S C ST in Oxnard, CA, contact your Outland and Associates / JoAnn Outland agent at 8054417754.
Similar Listings Nearby
Full-time Real Estate Broker, sold 1400+ Properties in SLO and SBC County. 40+ years of local real estate knowledge and experience. I understand each sale is about you and your goals. I know as we get older, we don’t have time to make up for any mistakes especially when it comes to one the most significant investments. I care about my clients and work very hard to share my knowledge and protect you along the way. I place the appropriate verbiage in the listing and listing agreement depending…
More About JoAnn
Courtesy of Exit Castillo Realty. Disclaimer: All data relating to real estate for sale on this page comes from the Broker Reciprocity (BR) of the California Regional Multiple Listing Service. Detailed information about real estate listings held by brokerage firms other than Outland and Associates / JoAnn Outland include the name of the listing broker. Neither the listing company nor Outland and Associates / JoAnn Outland shall be responsible for any typographical errors, misinformation, misprints and shall be held totally harmless. The Broker providing this data believes it to be correct, but advises interested parties to confirm any item before relying on it in a purchase decision. Copyright 2026. California Regional Multiple Listing Service. All rights reserved. 1239 S C ST
Oxnard, CA













