2421 Ocean DR
Oxnard, CA, 93035
$3,895,000
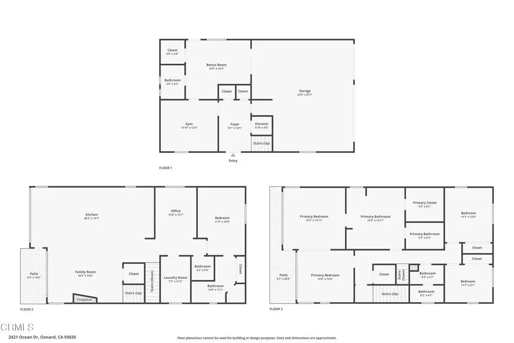
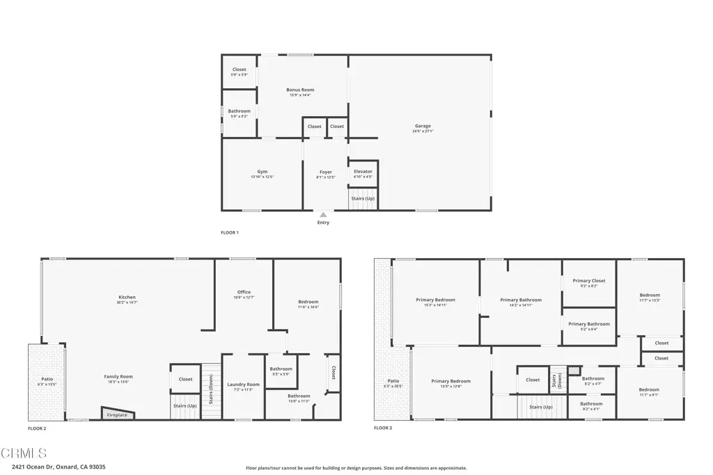
OCEANFRONT living on Silver Strand Beach. Perfectly positioned directly on the sand, this custom-built coastal estate delivers breathtaking ocean and down-channel harbor views through dramatic floor-to-ceiling windows along the beachside, designed to capture the coastline, light, and horizon from nearly every angle.Built in 2002, this expansive residence offers 5 spacious bedrooms and 4.5 baths, thoughtfully designed for both everyday comfort and effortless entertaining. An elevator services all levels, while the oversized three-car garage features an extra-tall door–ideal for an oversized vehicle, van, or small motorhome.The chef’s kitchen is exceptionally appointed with marble countertops, double ovens, a cooktop with built-in grill, trash compactor, instant hot water, and a reverse-osmosis water filtration system, making it perfect for hosting gatherings large or small.Multiple outdoor living spaces define the coastal lifestyle, including a second-story deck with direct beach access and a spectacular rooftop deck offering 360-degree panoramic views of the ocean, Channel Islands Harbor, vibrant sunsets, and surrounding mountains. A versatile bonus room with surround sound provides flexible space for media, fitness, or guests.The primary suite is a true private retreat, featuring a sitting area, its own view deck, and a spa-inspired bath complete with a Whirlpool soaking tub, oversized walk-in shower, skylights, and dual walk-in closets.Additional highlights include five-zone in-floor heating, security system and a second-level laundry room with excellent storage and a convenient laundry chute.A rare opportunity to own a true oceanfront home with direct sand access, panoramic views, and exceptional amenities–where every day feels like a vacation. Ideally located just North of Malibu and South of Santa Barbara, Silver Strand Beach remains one of Southern California’s best-kept coastal gems.
Current real estate data for Single Family in Oxnard as of Apr 07, 2026
227
Single Family Listed
67
Avg DOM
454
Avg $ / SqFt
$1,020,856
Avg List Price
Property Details
Price:
$3,895,000
MLS #:
V1-34495
Status:
Active
Beds:
5
Baths:
5
Type:
Single Family
Subtype:
Single Family Residence
Subdivision:
Silverstrand Beach – 0308
Neighborhood:
vc32oxnardporthuenemebeaches
Listed Date:
Feb 11, 2026
Finished Sq Ft:
3,600
Lot Size:
2,613 sqft / 0.06 acres (approx)
Year Built:
2002
Schools
Interior
Appliances
DW, MW, RF, FSR, GRL, WHU, WS
Bathrooms
4 Full Bathrooms, 1 Half Bathroom
Cooling
NO
Heating
RA, ZN
Interior Features
FU, OFP, _2STR, BL, EV
Laundry Features
IR
Levels
C
Main Level Bathrooms
1
Main Level Bedrooms
1
Exterior
Architectural Style
CNT
Attached Garage YN
1
Common Walls
NCW
Community Features
FISH, WATE, BIKI
Construction Materials
STC
Fencing
GL
Garage Spaces
3
Parking Spots
3
Parking Total
3
Patio And Porch Features
DK, RT
Security Features
SS, SD, COD
Spa Features
NO
View
CL, CO, HA, MA, MT, OC, PA, WA, WW
Financial
Map
Contact Us
Mortgage Calculator
Community
- Address2421 Ocean DR Oxnard CA
- SubdivisionSilverstrand Beach – 0308
- CityOxnard
- CountyVentura
- Zip Code93035
Subdivisions in Oxnard
- Anacapa View Homes 1 247101
- Cabrillo Park Homes 1 – 229701
- Channel Island Waterfront Homes – 4846
- Cielo II – 5399
- College Estates 1 – 246601
- Greenbrook Estates 1 – 307801
- Harborwalk
- Harbour Island 1 – 413201
- Hollywood Beach – 0302
- Hollywood By The Sea – 0303
- Lemonwood Estates 1 – 209101
- Meadowlake MHP – 1002762
- Other – 0011
- Oxnard Estates 1 – 0364
- Oxnard Shores 01 – 127701
- Oxnard Shores 6 – 1216
- Oxnard: Other – 0031
- Oxnard: Other – 0033
- Oxnard: Other – 0035
- Pepperwood 5 – 3545
- Rancho De La Rosa 1 – 471401
- Riverpark – 535201
- Silverstrand Beach – 0308
- Sunrise Pointe/Sunset Cove 2 – 513602
- Wagon Wheel
- Westport at Mandalay Bay 1 – 519601
- Westport at Mandalay Bay 2 – 519602
- William Lyon Homes 1 – 522801
- Wooley Road Subdivision – 0341
Property Summary
- Located in the Silverstrand Beach – 0308 subdivision, 2421 Ocean DR Oxnard CA is a Single Family for sale in Oxnard, CA, 93035. It is listed for $3,895,000 and features 5 beds, 5 baths, and has approximately 3,600 square feet of living space, and was originally constructed in 2002. The current price per square foot is $1,082. The average price per square foot for Single Family listings in Oxnard is $454. The average listing price for Single Family in Oxnard is $1,020,856. To schedule a showing of MLS#v1-34495 at 2421 Ocean DR in Oxnard, CA, contact your Outland and Associates / JoAnn Outland agent at 8054417754.
Similar Listings Nearby
Get Out There, A Simply Outgoing Approach to Life. James Outland Jr. is one of those rare people who simply has an outgoing approach to life. No matter the activity… from dune buggy riding to skydiving to motorcycling to riding the local Pismo Beach waves… James Outland Jr. approaches life with a “just get out there and do it” kind of attitude. A zest for Life. James’ zest for life is obviously apparent in his many exciting hobbies. In his spare time, he loves riding dune buggies or hi…
More About James
Courtesy of RE/MAX Gold Coast-Beach Office. Disclaimer: All data relating to real estate for sale on this page comes from the Broker Reciprocity (BR) of the California Regional Multiple Listing Service. Detailed information about real estate listings held by brokerage firms other than Outland and Associates / JoAnn Outland include the name of the listing broker. Neither the listing company nor Outland and Associates / JoAnn Outland shall be responsible for any typographical errors, misinformation, misprints and shall be held totally harmless. The Broker providing this data believes it to be correct, but advises interested parties to confirm any item before relying on it in a purchase decision. Copyright 2026. California Regional Multiple Listing Service. All rights reserved. 2421 Ocean DR
Oxnard, CA
























































