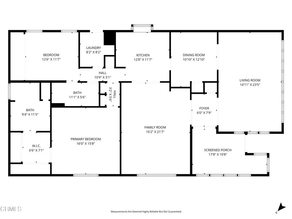
You will enjoy this amazing triple wide spacious mobile home in this ocean front family park every day ! This wonderful home was extensively updated with a new kitchen, bathrooms, laminate flooring, water heater, furnace, recessed lighting, new windows added and sealed, also up and down blinds added and gutters. Trex steps were also added at entry. In the huge family room you will love the giant smart TV with surround sound built into the walls and the built in book shelves. The dining room has lots of beautiful glass cabinets for your fine china and extra storage. The designer kitchen with upgraded stove, a new Bosch dishwasher, microwave, farmers sink with a goose neck faucet and comes with a window box to grow your fresh herbs in all year long! You will love the expansive primary suite! It has big closets and an updated bathroom with walk in shower. The whole house was leveled in 2025. The neighbors are wonderful and there is a real sense of community here and fun gatherings in the clubhouse that has a large meeting room with a kitchen, a gym, library, billiards, pool and spa! It sure is great living at the beach now you can too!
Current real estate data for Single Family in Oxnard as of Apr 01, 2026
246
Single Family Listed
91
Avg DOM
433
Avg $ / SqFt
$960,484
Avg List Price
Property Details
Price:
$505,000
MLS #:
V1-32811
Status:
Active
Beds:
2
Baths:
2
Type:
Single Family
Subdivision:
Oxnard Shores MHP – 030701
Neighborhood:
vc32oxnardporthuenemebeaches
Listed Date:
Oct 10, 2025
Finished Sq Ft:
1,949
Lot Size:
3,943 sqft / 0.09 acres (approx)
Year Built:
1977
Schools
Interior
Appliances
DW, MW, WP, GO, GR, BBQ, GWH, WHU
Bathrooms
2 Full Bathrooms
Cooling
NO
Flooring
LAM
Interior Features
CF, ST, SUND, UFRN, OFP
Exterior
Community Features
PARK, FISH, WATE, HIKI, BIKI
Fencing
NO
Garage Spaces
2
Parking Spots
2
Parking Total
2
Spa Features
IG, COM
Financial
Lease Land Amount
$1,347
Lease Land Frequency
MO
Map
Contact Us
Mortgage Calculator
Community
- Address5540 W 5TH ST #SPC 26 Oxnard CA
- SubdivisionOxnard Shores MHP – 030701
- CityOxnard
- CountyVentura
- Zip Code93035
Subdivisions in Oxnard
- Anacapa View Homes 1 247101
- Cabrillo Park Homes 1 – 229701
- Channel Island Waterfront Homes – 4846
- Cielo II – 5399
- College Estates 1 – 246601
- Greenbrook Estates 1 – 307801
- Harborwalk
- Harbour Island 1 – 413201
- Hollywood Beach – 0302
- Hollywood By The Sea – 0303
- Lemonwood Estates 1 – 209101
- Meadowlake MHP – 1002762
- Other – 0011
- Oxnard Estates 1 – 0364
- Oxnard Shores 01 – 127701
- Oxnard Shores 6 – 1216
- Oxnard: Other – 0031
- Oxnard: Other – 0033
- Oxnard: Other – 0035
- Pepperwood 5 – 3545
- Rancho De La Rosa 1 – 471401
- Riverpark – 535201
- Silverstrand Beach – 0308
- Sunrise Pointe/Sunset Cove 2 – 513602
- Wagon Wheel
- Westport at Mandalay Bay 1 – 519601
- Westport at Mandalay Bay 2 – 519602
- William Lyon Homes 1 – 522801
- Wooley Road Subdivision – 0341
Property Summary
- Located in the Oxnard Shores MHP – 030701 subdivision, 5540 W 5TH ST #SPC 26 Oxnard CA is a Single Family for sale in Oxnard, CA, 93035. It is listed for $505,000 and features 2 beds, 2 baths, and has approximately 1,949 square feet of living space, and was originally constructed in 1977. The current price per square foot is $259. The average price per square foot for Single Family listings in Oxnard is $433. The average listing price for Single Family in Oxnard is $960,484. To schedule a showing of MLS#v1-32811 at 5540 W 5TH ST #SPC 26 in Oxnard, CA, contact your Outland and Associates / JoAnn Outland agent at 8054417754.
Similar Listings Nearby
Full-time Real Estate Broker, sold 1400+ Properties in SLO and SBC County. 40+ years of local real estate knowledge and experience. I understand each sale is about you and your goals. I know as we get older, we don’t have time to make up for any mistakes especially when it comes to one the most significant investments. I care about my clients and work very hard to share my knowledge and protect you along the way. I place the appropriate verbiage in the listing and listing agreement depending…
More About JoAnn
Courtesy of LIV Sotheby’s International. Disclaimer: All data relating to real estate for sale on this page comes from the Broker Reciprocity (BR) of the California Regional Multiple Listing Service. Detailed information about real estate listings held by brokerage firms other than Outland and Associates / JoAnn Outland include the name of the listing broker. Neither the listing company nor Outland and Associates / JoAnn Outland shall be responsible for any typographical errors, misinformation, misprints and shall be held totally harmless. The Broker providing this data believes it to be correct, but advises interested parties to confirm any item before relying on it in a purchase decision. Copyright 2026. California Regional Multiple Listing Service. All rights reserved. 5540 W 5TH ST #SPC 26
Oxnard, CA





































