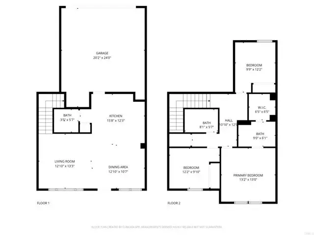
Welcome to 343 American River Ct, a beautifully updated 3-bedroom, 2.5-bath two-story condo in the highly desirable Riverpark community. This move-in-ready home features 1,336 sq ft of modern living space, Mediterranean-inspired architecture, and a location that places you steps from The Collection at Riverpark, one of Oxnard’s top shopping, dining, and entertainment destinations. Inside, you’ll find new waterproof flooring, high ceilings, and an open-concept layout designed for comfort and style. The updated kitchen features sleek cabinetry and fresh paint, creating a bright and inviting space perfect for everyday cooking or entertaining guests. The lower level feels airy and spacious thanks to the natural light flowing through the large windows. Enjoy the convenience of in-unit laundry with washer and dryer included, plus an attached two-car garage, providing storage and parking flexibility not always found in Oxnard condos. Every detail has been thoughtfully updated to support today’s modern lifestyle. Living in Riverpark, Oxnard offers a true lifestyle experience. Residents enjoy lush walking trails, family-friendly community parks, basketball courts, BBQ areas, playgrounds, and picnic spaces. You’re just a quick walk to Whole Foods, Target, Century Riverpark Movie Theater, Lazy Dog, Yard House, and more, making this one of Oxnard’s most walkable and convenient neighborhoods. Easy access to the 101 Freeway makes commuting simple whether you’re headed to Ventura, Camarillo, or the greater Ventura County area. With its unbeatable location, modern upgrades, and low-maintenance lifestyle, this Riverpark condo is more than a home, it’s the gateway to the best of Oxnard coastal living.
Property Details
Price:
$634,990
MLS #:
NDP2510631
Status:
Active
Beds:
3
Baths:
3
Type:
Condo
Subtype:
Condominium
Neighborhood:
vc35
Listed Date:
Nov 6, 2025
Finished Sq Ft:
1,336
Year Built:
2013
Schools
School District:
Oxnard Union
Interior
Appliances
DW, GD, MW, GO, GR
Bathrooms
2 Full Bathrooms, 1 Half Bathroom
Cooling
NO
Laundry Features
IN, DINC, WINC
Exterior
Community Features
SDW, SL, PARK
Parking Spots
2
Financial
HOA Fee
$245
HOA Fee 2
$38
HOA Frequency
MO
Map
Contact Us
Mortgage Calculator
Community
- AddressAmerican River Ct Oxnard CA
- CityOxnard
- CountyVentura
- Zip Code93036
Subdivisions in Oxnard
- Agee 0322
- Aldea Del Mar 1 514801
- Anacapa View Homes 1 247101
- Bartolo Square – 340
- Bryce Canyon – 3650
- Cabrillo Park – 0326
- Cal-Gisler – 0351
- California Cove – 4492
- California Lighthouse 10 – 4810
- Carty Tract – 0331
- Casa Dulce – 538902
- Channel Island Park I – 2158
- Channel Island Waterfront Homes – 4846
- Courtland Park – 2787
- Cypress Point 7 – 338407
- Daily Ranch – 5276
- Deckside Villas – 3444
- Diamond Bar Rancho 2 – 134002
- Dover Square 2 – 145202
- Driftwood Swim & Racquet Club – 2067
- Dunes Beach Area – 1567
- Eastwood – Lathrop – 0323
- Edgewood 1 – 247201
- Fashion Park Place – 0374
- Fremont Square – 0334
- Greystone – 452903
- Harborwalk
- Harborwalk – 0305
- Harbour Island 1 – 413201
- Hollywood Beach – 0302
- Hollywood Beach MHP – 30201
- Hollywood By The Sea – 0303
- Imperial Oxnard MHP – 037004
- Ivywood – 2479
- Kamala Park Homes – 0344
- La Colonia – 0318
- Las Brisas
- Mandalay Bay 01 – 202601
- Mandalay Bay 03 – 202603
- Mandalay Bay 3 – 190403
- Marina Pacifica – 2248
- Marina Vista 1 – 167401
- Meadowlake MHP – 0311
- Meadowlake MHP – 1002762
- Northside Park – 0329
- Northstar – 442402
- Nyeland Acres – 0395
- Oceanaire MHP – 037007
- Orchard Lane Terrace – 2464
- Oxnard Beach: Other – 0032
- Oxnard Estates North – 1341
- Oxnard Park Subdivision – 0325
- Oxnard Shores – 2766
- Oxnard Shores 00 – 2900
- Oxnard Shores 01 – 127701
- Oxnard Shores 02 – 127702
- Oxnard Shores 29 – 3929
- Oxnard Shores 6 – 1216
- Oxnard Shores 8 – 2788
- Oxnard Shores MHP – 030701
- Oxnard Shores: Driftwood 1 – 2901
- Oxnard Shores: Mandalay Shores 1 – 4651
- Oxnard Shores: Neptune Square 4 – 2814
- Oxnard: Other – 0031
- Oxnard: Other – 0033
- Oxnard: Other – 0034
- Oxnard: Other – 0035
- Oxnard: Other – 0036
- Pacific Coast Condos – 3089
- Park Dorado 2 – 2602
- Pepperwood 6 – 3586
- Port Marluna – 526604
- Rancho De La Rosa 1 – 471401
- River Ridge
- River Ridge Golf Course – 5032
- River Ridge, J.M.Peters – 338403
- Riverpark – 535201
- Rose Park 2 – 136302
- Seabridge – 5266
- Silverstrand Beach – 0308
- Smugglers Cove 1 – 253001
- Southbay Townhomes – 0377
- Southwinds 3 – 4553
- Strawberry Fields 1 – 4351
- Strawberry Fields 3 – 305103
- Sunbeam Homes 2 – 121302
- Sunrise Pointe/Sunset Cove 3 – 513603
- The Colony – 2923
- The Dunes 01 – 156701
- The Pointe 1 – 484001
- The Villages The Villas – 188306
- The Villas – 188305
- Town Of Oxnard – 0322
- Victoria Estates Aviara – 5408
- Victoria Estates Legacy – 523404
- Victoria Estates Pacifica – 523405
- Villa Santa Cruz & Carmel – 513501
- Villa Santa Cruz 2 – 513502
- Wagon Wheel
- Westport at Mandalay Bay 1 – 519601
- Westport at Mandalay Bay 2 – 519602
- Westport at Mandalay Bay 4 – 519604
- Westport at Mandalay Bay 5 – 519605
- Westport at Mandalay Bay 6 – 519606
- William Lyon Homes 2 – 522802
- Windsor North III – 1538
- Wingfield – 5340
Property Summary
- American River Ct Oxnard CA is a Condo for sale in Oxnard, CA, 93036. It is listed for $634,990 and features 3 beds, 3 baths, and has approximately 1,336 square feet of living space, and was originally constructed in 2013. The current price per square foot is $475. The average price per square foot for Condo listings in Oxnard is $500. The average listing price for Condo in Oxnard is $669,918. To schedule a showing of MLS#ndp2510631 at American River Ct in Oxnard, CA, contact your Outland and Associates / JoAnn Outland agent at 8054417754.
Similar Listings Nearby
Full-time Real Estate Broker, sold 1400+ Properties in SLO and SBC County. 40+ years of local real estate knowledge and experience. I understand each sale is about you and your goals. I know as we get older, we don’t have time to make up for any mistakes especially when it comes to one the most significant investments. I care about my clients and work very hard to share my knowledge and protect you along the way. I place the appropriate verbiage in the listing and listing agreement depending…
More About JoAnn
Courtesy of Real Broker. Disclaimer: All data relating to real estate for sale on this page comes from the Broker Reciprocity (BR) of the California Regional Multiple Listing Service. Detailed information about real estate listings held by brokerage firms other than Outland and Associates / JoAnn Outland include the name of the listing broker. Neither the listing company nor Outland and Associates / JoAnn Outland shall be responsible for any typographical errors, misinformation, misprints and shall be held totally harmless. The Broker providing this data believes it to be correct, but advises interested parties to confirm any item before relying on it in a purchase decision. Copyright 2025. California Regional Multiple Listing Service. All rights reserved. American River Ct
Oxnard, CA












































