7736 Easy ST
Onyx, CA, 93255
$575,000
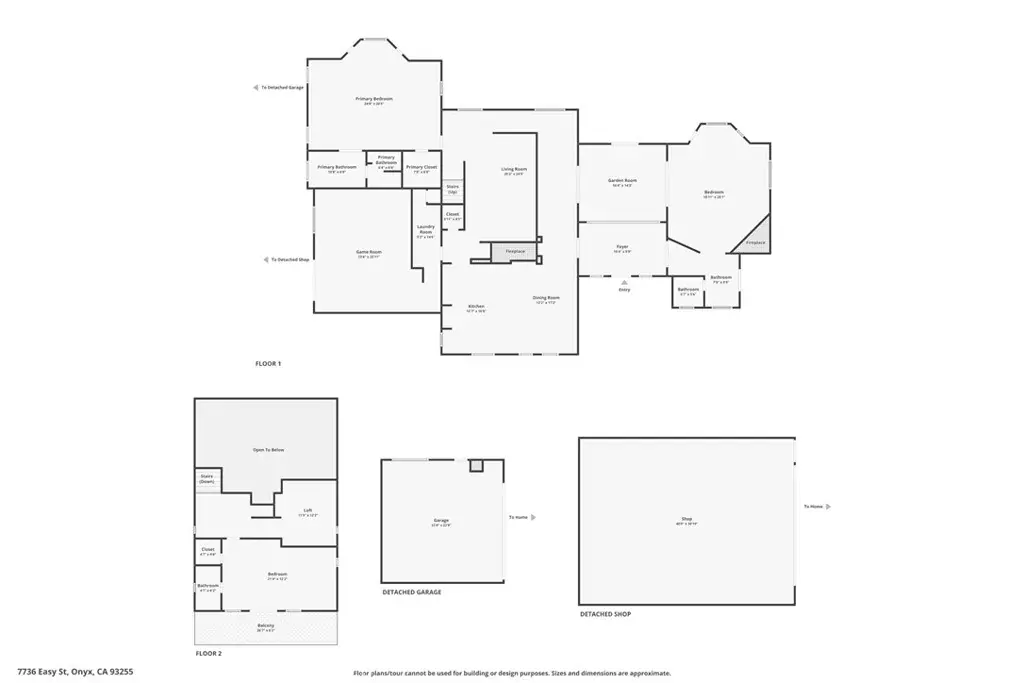
Nestled in the heart of the beautiful Kern River Valley, within 20 miles from both Kernville & Lake Isabella, this 1979 custom-built home offers a rare blend of space, comfort, & privacy. Boasting 3,393 sq. ft. of living space, this unique property sits on 5.24 acres & includes two adjoining parcels. Inside, you’ll find a thoughtful split-wing floor plan featuring 3 spacious bedrooms and 3 full bathrooms, a large bonus game room, a sunlit garden room, & an upstairs loft/office space with access to a second-floor balcony perfect for stargazing or sipping your morning coffee.This home is built for year-round comfort and efficiency with two HVAC units (2-ton & 5-ton), split systems in the primary & upstairs bedrooms, owned solar power (both ground-mounted and rooftop panels). Additional features include granite counter tops in the kitchen, two septic tanks, a private water well, & RV hookups, in-ground pool, fire pit, detached garage, 30×40 shop, alumawood patio cover, carport & more.
Current real estate data for Single Family in Onyx as of Mar 10, 2026
2
Single Family Listed
127
Avg DOM
246
Avg $ / SqFt
$535,000
Avg List Price
Property Details
Price:
$575,000
MLS #:
PI25175781
Status:
Active
Beds:
3
Baths:
3
Type:
Single Family
Subtype:
Single Family Residence
Neighborhood:
699notdefined
Listed Date:
Aug 5, 2025
Finished Sq Ft:
3,393
Lot Size:
228,254 sqft / 5.24 acres (approx)
Year Built:
1979
Schools
School District:
Other
Elementary School:
Other
Middle School:
Other
Interior
Appliances
RF, GS, EO
Bathrooms
3 Full Bathrooms
Cooling
CA, WHF
Flooring
TILE, LAM, VINY, CARP
Heating
SO, CF, FIR, PEL
Laundry Features
IN, DINC, WINC
Exterior
Community Features
BLM, HIKI
Exterior Features
KNL, RG
Parking Spots
2
Roof
CMP, FLT
Security Features
AG
Financial
Map
Contact Us
Mortgage Calculator
Community
- Address7736 Easy ST Onyx CA
- CityOnyx
- CountyKern
- Zip Code93255
Property Summary
- 7736 Easy ST Onyx CA is a Single Family for sale in Onyx, CA, 93255. It is listed for $575,000 and features 3 beds, 3 baths, and has approximately 3,393 square feet of living space, and was originally constructed in 1979. The current price per square foot is $169. The average price per square foot for Single Family listings in Onyx is $246. The average listing price for Single Family in Onyx is $535,000. To schedule a showing of MLS#pi25175781 at 7736 Easy ST in Onyx, CA, contact your Outland and Associates / JoAnn Outland agent at 8054417754.
Similar Listings Nearby
Get Out There, A Simply Outgoing Approach to Life. James Outland Jr. is one of those rare people who simply has an outgoing approach to life. No matter the activity… from dune buggy riding to skydiving to motorcycling to riding the local Pismo Beach waves… James Outland Jr. approaches life with a “just get out there and do it” kind of attitude. A zest for Life. James’ zest for life is obviously apparent in his many exciting hobbies. In his spare time, he loves riding dune buggies or hi…
More About James
Courtesy of The Landmark Agency. Disclaimer: All data relating to real estate for sale on this page comes from the Broker Reciprocity (BR) of the California Regional Multiple Listing Service. Detailed information about real estate listings held by brokerage firms other than Outland and Associates / JoAnn Outland include the name of the listing broker. Neither the listing company nor Outland and Associates / JoAnn Outland shall be responsible for any typographical errors, misinformation, misprints and shall be held totally harmless. The Broker providing this data believes it to be correct, but advises interested parties to confirm any item before relying on it in a purchase decision. Copyright 2026. California Regional Multiple Listing Service. All rights reserved. 7736 Easy ST
Onyx, CA












































































