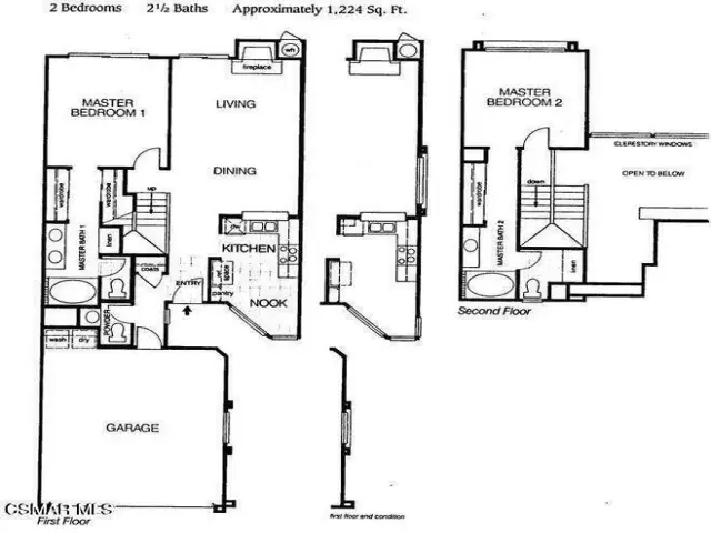
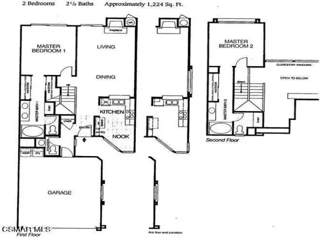
Discover this ultra-clean, private end-unit townhome in the highly sought-after Capri community of Oak Park.Offered as a rental for the first time, this exceptional home lives like a detached house, featuring a full-sized driveway and a secluded location on a quiet cul-de-sac street. The unique floor plan boasts dual master bedroom suites, one conveniently located on the main floor, and the second upstairs. Both bedrooms feature beautiful hardwood floors, ample storage with mirrored wardrobes, and remodeled baths. The downstairs suite includes a custom built-in armoire and private patio access, while the upstairs suite offers a customized walk-in closet and a large walk-in shower. The great room welcomes you with a dramatic vaulted, beamed ceiling, smooth slate flooring, and a cozy fireplace. A sliding door provides seamless access to the private rear yard. The remodeled, cheery kitchen features stainless steel appliances and a sunny breakfast nook. A guest powder room completes the first level. Outdoor Oasis! Enjoy privacy in the large rear yard and gated side yard, which opens up to a spacious common grass area. A two-car garage with direct access provides ample storage and included washer/dryer units. NEMA 6-50 EV charger in place for convenience. Freshly painted throughout and ready to go! Residents enjoy access to a community pool, spa, playground, and tennis courts. Benefit from top-rated Oak Park schools and wonderful local amenities!
Current real estate data for Single Family in Oak Park as of Jan 11, 2026
14
Single Family Listed
53
Avg DOM
133
Avg $ / SqFt
$231,778
Avg List Price
Property Details
Price:
$4,000
MLS #:
225005842
Status:
Active
Beds:
2
Baths:
3
Type:
Single Family
Subtype:
Townhouse
Subdivision:
Capri West Oaks Park-832 – 832
Neighborhood:
agoaagoura
Listed Date:
Dec 17, 2025
Finished Sq Ft:
1,240
Lot Size:
1,240 sqft / 0.03 acres (approx)
Year Built:
1992
Schools
School District:
Oak Park Unified
Interior
Appliances
DW, FZ, GD, MW, RF, HOD
Bathrooms
2 Full Bathrooms, 1 Half Bathroom
Cooling
CA
Flooring
STON
Laundry Features
IG
Exterior
Construction Materials
STC
Parking Spots
2
Roof
TLE
Financial
Map
Contact Us
Mortgage Calculator
Community
- Address491 Novara WY Oak Park CA
- SubdivisionCapri West Oaks Park-832 – 832
- CityOak Park
- CountyVentura
- Zip Code91377
Subdivisions in Oak Park
Property Summary
- Located in the Capri West Oaks Park-832 – 832 subdivision, 491 Novara WY Oak Park CA is a Single Family for sale in Oak Park, CA, 91377. It is listed for $4,000 and features 2 beds, 3 baths, and has approximately 1,240 square feet of living space, and was originally constructed in 1992. The current price per square foot is $3. The average price per square foot for Single Family listings in Oak Park is $133. The average listing price for Single Family in Oak Park is $231,778. To schedule a showing of MLS#225005842 at 491 Novara WY in Oak Park, CA, contact your Outland and Associates / JoAnn Outland agent at 8054417754.
Similar Listings Nearby
Full-time Real Estate Broker, sold 1400+ Properties in SLO and SBC County. 40+ years of local real estate knowledge and experience. I understand each sale is about you and your goals. I know as we get older, we don’t have time to make up for any mistakes especially when it comes to one the most significant investments. I care about my clients and work very hard to share my knowledge and protect you along the way. I place the appropriate verbiage in the listing and listing agreement depending…
More About JoAnn
Courtesy of Equity Union Real Estate. Disclaimer: All data relating to real estate for sale on this page comes from the Broker Reciprocity (BR) of the California Regional Multiple Listing Service. Detailed information about real estate listings held by brokerage firms other than Outland and Associates / JoAnn Outland include the name of the listing broker. Neither the listing company nor Outland and Associates / JoAnn Outland shall be responsible for any typographical errors, misinformation, misprints and shall be held totally harmless. The Broker providing this data believes it to be correct, but advises interested parties to confirm any item before relying on it in a purchase decision. Copyright 2026. California Regional Multiple Listing Service. All rights reserved. 491 Novara WY
Oak Park, CA








































