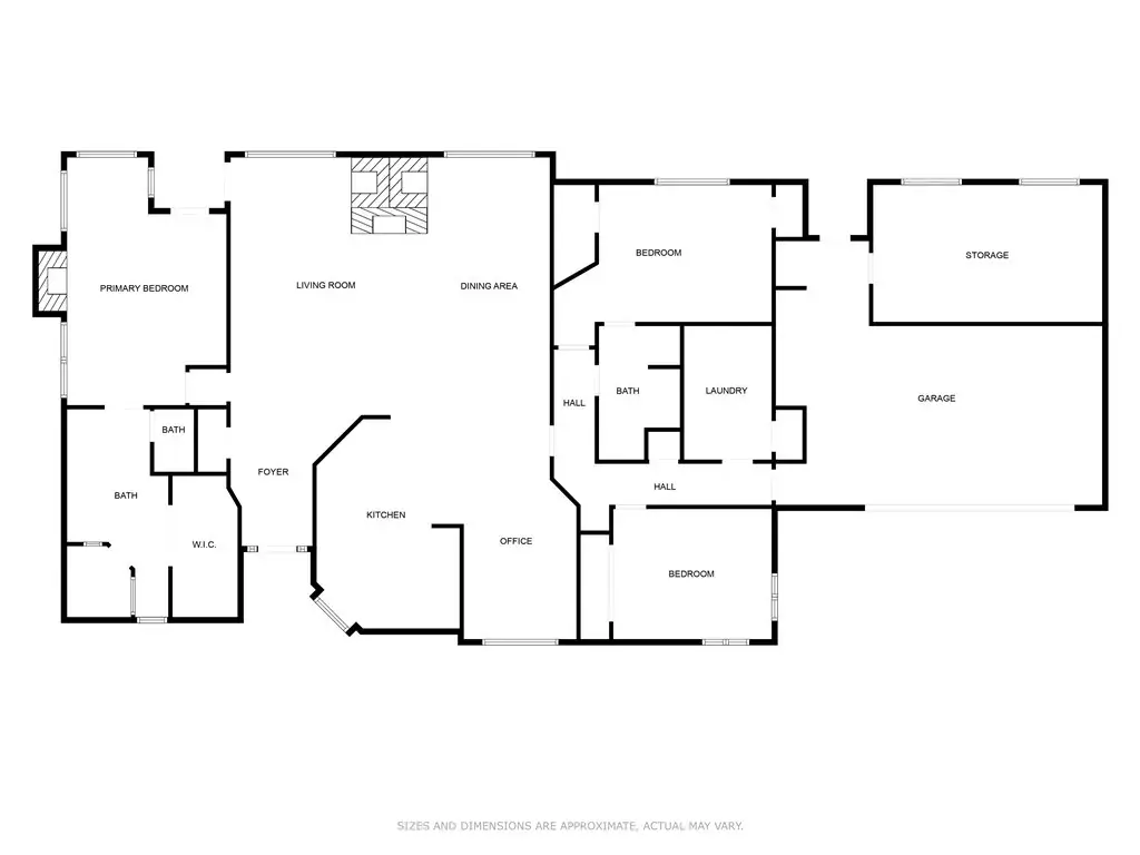
Welcome to this beautiful 2,400 sq. ft. home nestled in the serene bluff of Nipomo. This spacious 3-bedroom, 2-bathroom residence offers a harmonious blend of comfort, style, and natural beauty—with sweeping panoramic views of the lush crop fields in the valley below. Step inside to find durable and elegant tile flooring throughout, enhancing both aesthetics and easy maintenance. The expansive great room is a true centerpiece of the home, featuring a striking three-sided fireplace that adds warmth and ambiance from every angle—perfect for entertaining or relaxing. The well-designed primary suite offers a private retreat with a cozy fireplace, creating the perfect atmosphere for winding down. The suite also features a generously sized walk-in closet and a luxurious en-suite bathroom with dual vanities and a spacious walk-in tiled shower. Outside, the natural beauty of the surrounding agricultural landscape creates a sense of peace and open space, offering breathtaking sunsets and a unique connection to Nipomo’s rural charm. Don’t miss the opportunity to make this exceptional view property your home—where privacy, space, and scenery come together in one perfect package.
Current real estate data for Single Family in Nipomo as of Apr 02, 2026
69
Single Family Listed
73
Avg DOM
533
Avg $ / SqFt
$1,163,363
Avg List Price
Property Details
Price:
$949,000
MLS #:
NS25253197
Status:
Pending
Beds:
3
Baths:
2
Type:
Single Family
Subtype:
Single Family Residence
Subdivision:
Nipomo340
Neighborhood:
npmonipomo
Listed Date:
Nov 3, 2025
Finished Sq Ft:
2,400
Lot Size:
72,310 sqft / 1.66 acres (approx)
Year Built:
1989
Schools
School District:
Lucia Mar Unified
Interior
Appliances
DW, TC, GS
Bathrooms
2 Full Bathrooms
Cooling
NO
Flooring
TILE
Heating
FA
Interior Features
TILC
Laundry Features
IR
Levels
A
Main Level Bathrooms
2
Main Level Bedrooms
3
Exterior
Attached Garage YN
1
Common Walls
NCW
Community Features
RUR
Construction Materials
STC
Garage Spaces
2
Other Structures
SH
Parking Spots
2
Parking Total
2
Roof
SPT
Spa Features
NO
View
VA
Financial
Map
Contact Us
Mortgage Calculator
Community
- Address585 Via Mira Valle Nipomo CA
- SubdivisionNipomo(340)
- CityNipomo
- CountySan Luis Obispo
- Zip Code93444
Subdivisions in Nipomo
Property Summary
- Located in the Nipomo(340) subdivision, 585 Via Mira Valle Nipomo CA is a Single Family for sale in Nipomo, CA, 93444. It is listed for $949,000 and features 3 beds, 2 baths, and has approximately 2,400 square feet of living space, and was originally constructed in 1989. The current price per square foot is $395. The average price per square foot for Single Family listings in Nipomo is $533. The average listing price for Single Family in Nipomo is $1,163,363. To schedule a showing of MLS#ns25253197 at 585 Via Mira Valle in Nipomo, CA, contact your Outland and Associates / JoAnn Outland agent at 8054417754.
Similar Listings Nearby
Full-time Real Estate Broker, sold 1400+ Properties in SLO and SBC County. 40+ years of local real estate knowledge and experience. I understand each sale is about you and your goals. I know as we get older, we don’t have time to make up for any mistakes especially when it comes to one the most significant investments. I care about my clients and work very hard to share my knowledge and protect you along the way. I place the appropriate verbiage in the listing and listing agreement depending…
More About JoAnn
Courtesy of Home & Ranch Sotheby’s Intl. Disclaimer: All data relating to real estate for sale on this page comes from the Broker Reciprocity (BR) of the California Regional Multiple Listing Service. Detailed information about real estate listings held by brokerage firms other than Outland and Associates / JoAnn Outland include the name of the listing broker. Neither the listing company nor Outland and Associates / JoAnn Outland shall be responsible for any typographical errors, misinformation, misprints and shall be held totally harmless. The Broker providing this data believes it to be correct, but advises interested parties to confirm any item before relying on it in a purchase decision. Copyright 2026. California Regional Multiple Listing Service. All rights reserved. 585 Via Mira Valle
Nipomo, CA











































