Current real estate data for Single Family in Lompoc as of Jan 02, 2026
71
Single Family Listed
81
Avg DOM
425
Avg $ / SqFt
$810,178
Avg List Price
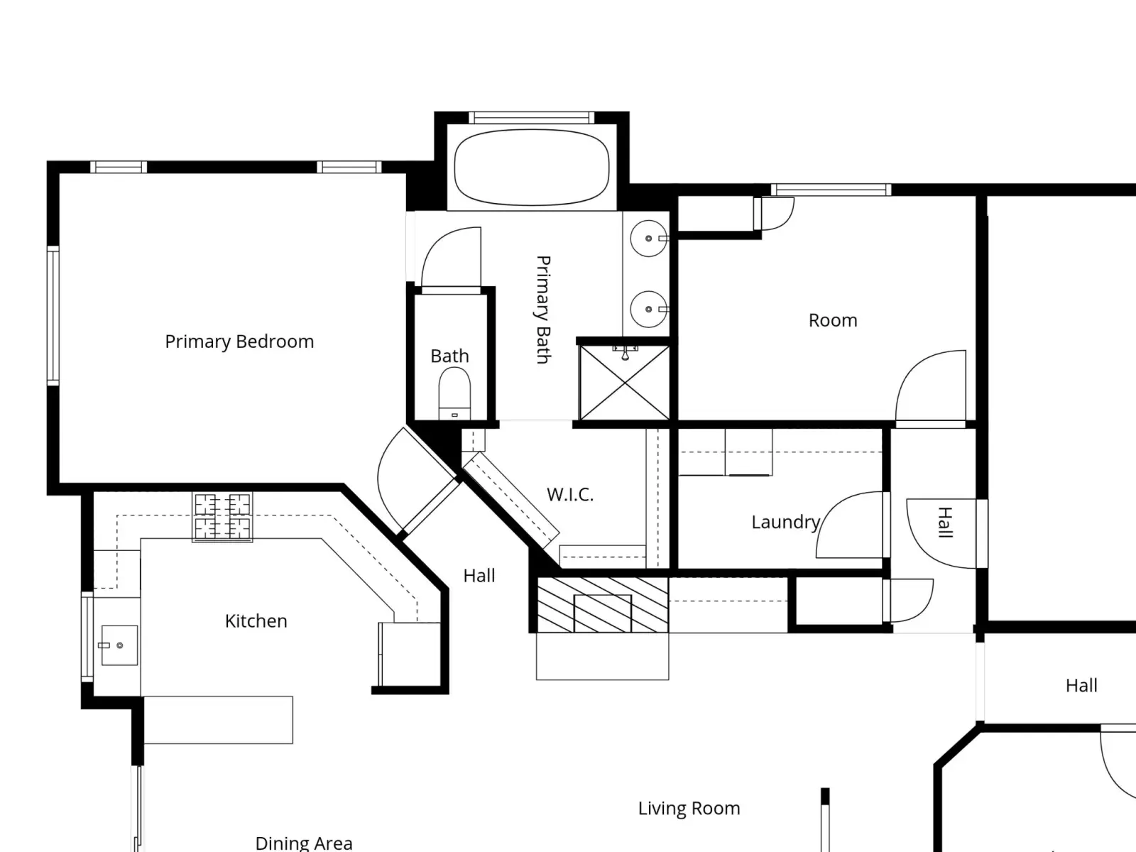
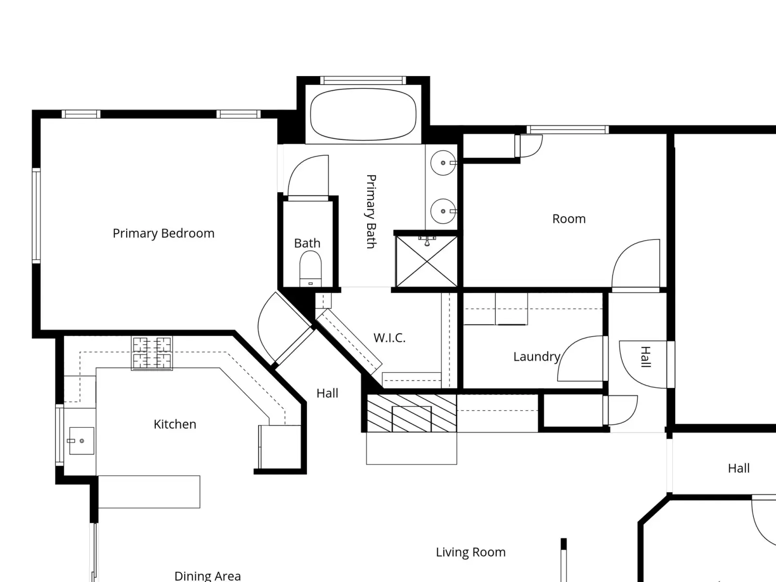
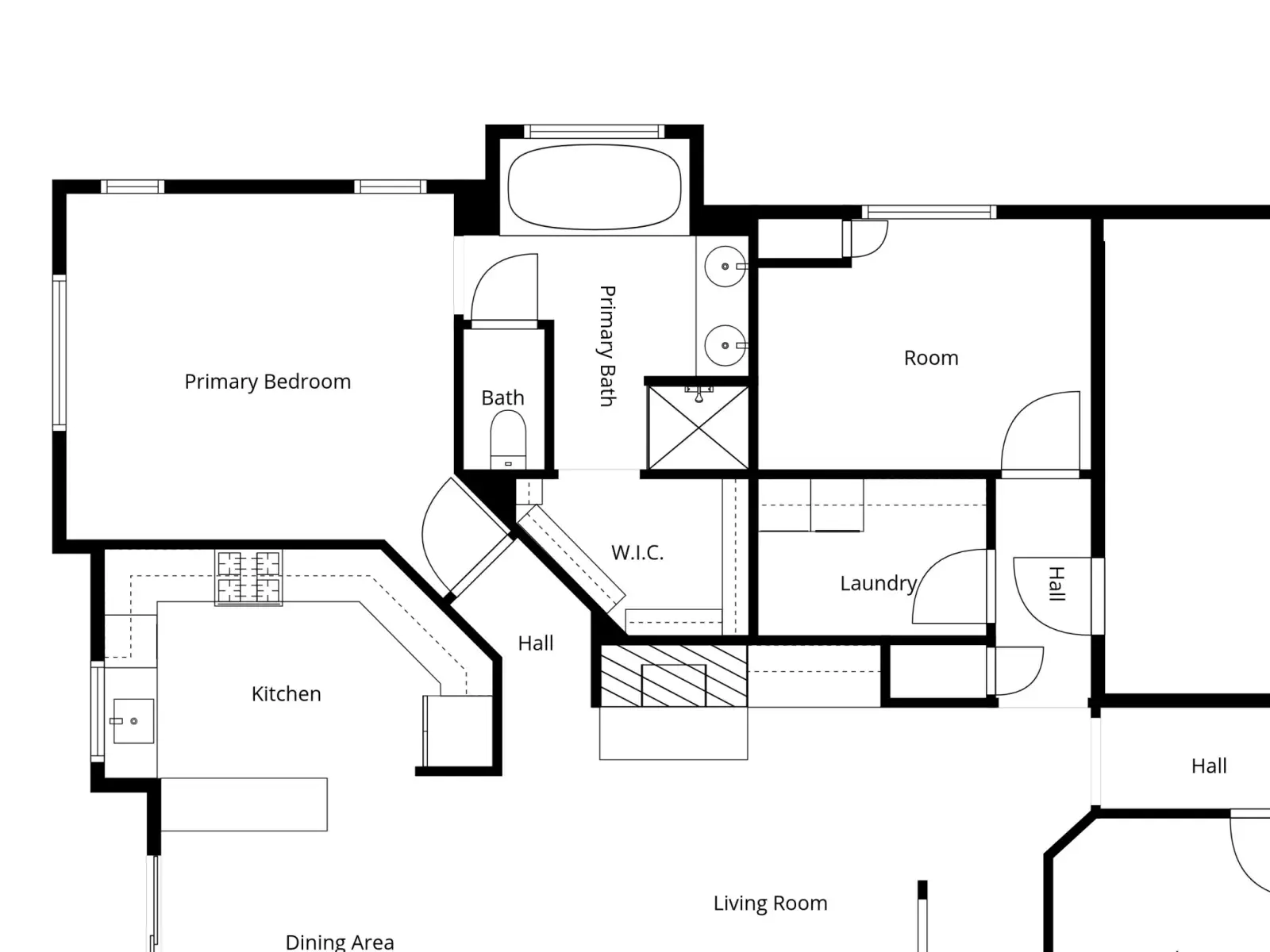
Property Details
Price:
$750,000
MLS #:
25002153
Status:
Active
Beds:
4
Baths:
2
Type:
Single Family
Subtype:
Single Family Residence
Listed Date:
Oct 31, 2025
Finished Sq Ft:
1,780
Lot Size:
7,841 sqft / 0.18 acres (approx)
Year Built:
2008
Schools
Interior
Air Conditioning
Ceiling Fans
Appliances Included
Oven/Range- Gas, Garbage Disp, Dishwasher
Dining Room Desc
Dining Area
Flooring
Vinyl
Full Baths
2
Heating
Forced Air
Interior Features
Dual Pn Windows
Laundry
Laundry Rm/Inside
Exterior
Covered Parking
Attached Garage
Exterior
Stucco, Stone
Exterior Features
Fenced Yard
Foundation
Slab
Lot Characteristics
Downslope
Roof Description
Clay
Site Improvements
Paved Streets, Sidewalks, Cable Available, Street Lights, Curbs/Gutter
Financial
Association Fee Incl
Other
Green Features
None
Renewable Energy
None
Map
Contact Us
Mortgage Calculator
Community
- Address758 Voyager Road Lompoc CA
- CityLompoc
- CountySanta Barbara
- Zip Code93436
Subdivisions in Lompoc
Property Summary
- 758 Voyager Road Lompoc CA is a Single Family for sale in Lompoc, CA, 93436. It is listed for $750,000 and features 4 beds, 2 baths, and has approximately 1,780 square feet of living space, and was originally constructed in 2008. The current price per square foot is $421. The average price per square foot for Single Family listings in Lompoc is $425. The average listing price for Single Family in Lompoc is $810,178. To schedule a showing of MLS#25002153 at 758 Voyager Road in Lompoc, CA, contact your Outland and Associates / JoAnn Outland agent at 8054417754.
Similar Listings Nearby
Full-time Real Estate Broker, sold 1400+ Properties in SLO and SBC County. 40+ years of local real estate knowledge and experience. I understand each sale is about you and your goals. I know as we get older, we don’t have time to make up for any mistakes especially when it comes to one the most significant investments. I care about my clients and work very hard to share my knowledge and protect you along the way. I place the appropriate verbiage in the listing and listing agreement depending…
More About JoAnn
Courtesy of BERKSHIRE HATHAWAY HOMESERVICES CA PROPERTIES. Disclaimer: All data relating to real estate for sale on this page comes from the Broker Reciprocity (BR) of the California Regional Multiple Listing Service. Detailed information about real estate listings held by brokerage firms other than Outland and Associates / JoAnn Outland include the name of the listing broker. Neither the listing company nor Outland and Associates / JoAnn Outland shall be responsible for any typographical errors, misinformation, misprints and shall be held totally harmless. The Broker providing this data believes it to be correct, but advises interested parties to confirm any item before relying on it in a purchase decision. Copyright 2026. California Regional Multiple Listing Service. All rights reserved. 758 Voyager Road
Lompoc, CA















































