73 Stanford
Lompoc, CA, 93436
$694,000
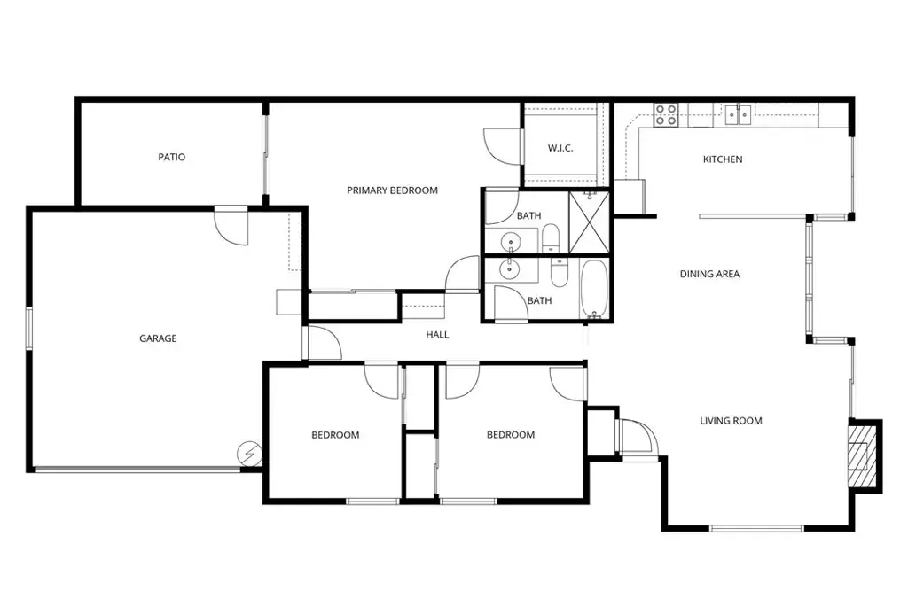
Nestled in the highly sought-after Country Club neighborhood, just steps from the golf course, this beautifully situated single story cluster home on a corner-lot offers the perfect blend of peaceful country club living and everyday convenience. Exceptional curb appeal begins with an expansive, lush front yard and continues inside where soaring cathedral ceilings and abundant natural light create a bright, airy feel throughout. The spacious living room features a cozy fireplace and sliding glass doors that open to a large patio–perfect for indoor-outdoor living and entertaining. The sun-filled kitchen showcases stainless steel appliances, generous counter space, and an open breakfast bar that flows seamlessly into the dining area, creating an inviting layout for gatherings. A sliding glass door provides easy patio access for effortless al fresco dining. This 3 bedroom, 2 bath home includes a private primary suite with its own sliding glass door to a secluded courtyard retreat and a generously sized walk-in closet. Additional highlights include a 2-car attached garage and a functional layout designed for comfort. With close proximity to Vandenberg Space Force Base and easy access to Hwy 1 for commuting to Santa Barbara, the location is ideal for military relocation and buyers seeking lifestyle and accessibility. With Stanford Circle access to the golf course, you can enjoy serene Country Club golf course living while living minutes from Vandenberg Space Force Base, wineries & everything offered by California’s central coast. This is an exceptional opportunity in one of the area’s most desirable neighborhoods
Current real estate data for Single Family in Lompoc as of Mar 18, 2026
17
Single Family Listed
100
Avg DOM
451
Avg $ / SqFt
$842,875
Avg List Price
Property Details
Price:
$694,000
MLS #:
NS26048660
Status:
Active
Beds:
3
Baths:
2
Type:
Single Family
Subtype:
Single Family Residence
Neighborhood:
699notdefined
Listed Date:
Mar 6, 2026
Finished Sq Ft:
1,420
Lot Size:
3,645 sqft / 0.08 acres (approx)
Year Built:
1979
Schools
School District:
Lompoc Unified
Interior
Appliances
DW, MW, RF, GO, GR
Bathrooms
2 Full Bathrooms
Cooling
NO
Heating
FA, GAS
Laundry Features
IG
Exterior
Community Features
GOLF
Parking Spots
2
Roof
TLE
Financial
HOA Fee
$487
HOA Frequency
MO
Map
Contact Us
Mortgage Calculator
Community
- Address73 Stanford Lompoc CA
- CityLompoc
- CountySanta Barbara
- Zip Code93436
Subdivisions in Lompoc
Property Summary
- 73 Stanford Lompoc CA is a Single Family for sale in Lompoc, CA, 93436. It is listed for $694,000 and features 3 beds, 2 baths, and has approximately 1,420 square feet of living space, and was originally constructed in 1979. The current price per square foot is $489. The average price per square foot for Single Family listings in Lompoc is $451. The average listing price for Single Family in Lompoc is $842,875. To schedule a showing of MLS#ns26048660 at 73 Stanford in Lompoc, CA, contact your Outland and Associates / JoAnn Outland agent at 8054417754.
Similar Listings Nearby
Full-time Real Estate Broker, sold 1400+ Properties in SLO and SBC County. 40+ years of local real estate knowledge and experience. I understand each sale is about you and your goals. I know as we get older, we don’t have time to make up for any mistakes especially when it comes to one the most significant investments. I care about my clients and work very hard to share my knowledge and protect you along the way. I place the appropriate verbiage in the listing and listing agreement depending…
More About JoAnn
Courtesy of Coldwell Banker Select Realty. Disclaimer: All data relating to real estate for sale on this page comes from the Broker Reciprocity (BR) of the California Regional Multiple Listing Service. Detailed information about real estate listings held by brokerage firms other than Outland and Associates / JoAnn Outland include the name of the listing broker. Neither the listing company nor Outland and Associates / JoAnn Outland shall be responsible for any typographical errors, misinformation, misprints and shall be held totally harmless. The Broker providing this data believes it to be correct, but advises interested parties to confirm any item before relying on it in a purchase decision. Copyright 2026. California Regional Multiple Listing Service. All rights reserved. 73 Stanford
Lompoc, CA






































