109 S 3rd ST
Lompoc, CA, 93436
$975,000
RE/MAX Commercial is pleased to offer the sale of a prime multifamily development parcel located at 109 South Third Street in Lompoc This one-acre site (Fidelity Passport Report), presents a compelling residential development opportunity in a well-established area of Southeast Lompoc.
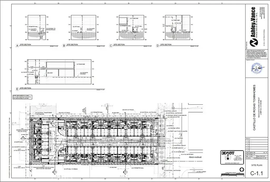
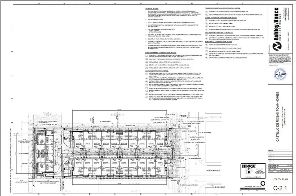
The property is zoned R-3 PD and is flat, level, and highly buildable with utilities readily available at the street–an ideal foundation for a thoughtful multifamily project. In 2021 the City of Lompoc approved a Mission-style townhome community known as Castillo de Rosas Townhomes. The approved plan envisioned: 24 two-story residential townhome units with three bedrooms and two and one-half baths per unit and individual two-car garages. A cohesive Mission-inspired architectural design.
Per 1/29/26 meeting with the City of Lompoc Planning department, planning entitlements are valid through June 17th, 2026. Map is valid until June 17th, 2027 with an additional 2-year extension available. Given the passage of time and evolving housing needs, buyer prospects are encouraged to engage directly with the City as well as the State new guidelines to explore additional density opportunities.
The location enhances the appeal: Prime Southeast Lompoc setting with close proximity to West Ocean Avenue and Hwy 1. Convenient access to the medical district, nearby Hapgood Elementary School, and established residential surroundings with neighborhood continuity.
About Lompoc and the region: Lompoc continues to gain attention as a coastal California community offering a rare balance of affordability, growth potential, and lifestyle appeal. Known for its open skies, agricultural roots, and proximity to the Pacific, the city benefits from regional drivers including Vandenberg Space Force Base, expanding medical services, and steady demand for quality workforce and family housing. Its location along the Central Coast places residents within reach of Santa Barbara, Santa Ynez wine country, and the rugged beauty of the Gaviota coastline.
This offering represents a near turnkey development opportunity in a city that values smart growth and community-oriented development. Why wait? Explore the potential and start shaping Lompoc’s next residential chapter today.
Buyer and Buyer’s agent to verify all information with City of Lompoc.
The property is zoned R-3 PD and is flat, level, and highly buildable with utilities readily available at the street–an ideal foundation for a thoughtful multifamily project. In 2021 the City of Lompoc approved a Mission-style townhome community known as Castillo de Rosas Townhomes. The approved plan envisioned: 24 two-story residential townhome units with three bedrooms and two and one-half baths per unit and individual two-car garages. A cohesive Mission-inspired architectural design.
Per 1/29/26 meeting with the City of Lompoc Planning department, planning entitlements are valid through June 17th, 2026. Map is valid until June 17th, 2027 with an additional 2-year extension available. Given the passage of time and evolving housing needs, buyer prospects are encouraged to engage directly with the City as well as the State new guidelines to explore additional density opportunities.
The location enhances the appeal: Prime Southeast Lompoc setting with close proximity to West Ocean Avenue and Hwy 1. Convenient access to the medical district, nearby Hapgood Elementary School, and established residential surroundings with neighborhood continuity.
About Lompoc and the region: Lompoc continues to gain attention as a coastal California community offering a rare balance of affordability, growth potential, and lifestyle appeal. Known for its open skies, agricultural roots, and proximity to the Pacific, the city benefits from regional drivers including Vandenberg Space Force Base, expanding medical services, and steady demand for quality workforce and family housing. Its location along the Central Coast places residents within reach of Santa Barbara, Santa Ynez wine country, and the rugged beauty of the Gaviota coastline.
This offering represents a near turnkey development opportunity in a city that values smart growth and community-oriented development. Why wait? Explore the potential and start shaping Lompoc’s next residential chapter today.
Buyer and Buyer’s agent to verify all information with City of Lompoc.
Property Details
Price:
$975,000
MLS #:
PI26015240
Status:
Active
Beds:
0
Baths:
0
Type:
Land
Neighborhood:
699notdefined
Listed Date:
Jan 23, 2026
Lot Size:
43,560 sqft / 1.00 acres (approx)
Schools
Interior
Exterior
Community Features
URB
Financial
Map
Contact Us
Mortgage Calculator
Community
- Address109 S 3rd ST Lompoc CA
- CityLompoc
- CountySanta Barbara
- Zip Code93436
Subdivisions in Lompoc
Property Summary
- 109 S 3rd ST Lompoc CA is a Land for sale in Lompoc, CA, 93436. It is listed for $975,000 and features 1 acres. To schedule a showing of MLS#pi26015240 at 109 S 3rd ST in Lompoc, CA, contact your Outland and Associates / JoAnn Outland agent at 8054417754.
Similar Listings Nearby
Get Out There, A Simply Outgoing Approach to Life. James Outland Jr. is one of those rare people who simply has an outgoing approach to life. No matter the activity… from dune buggy riding to skydiving to motorcycling to riding the local Pismo Beach waves… James Outland Jr. approaches life with a “just get out there and do it” kind of attitude. A zest for Life. James’ zest for life is obviously apparent in his many exciting hobbies. In his spare time, he loves riding dune buggies or hi…
More About James
Courtesy of RE/MAX Success. Disclaimer: All data relating to real estate for sale on this page comes from the Broker Reciprocity (BR) of the California Regional Multiple Listing Service. Detailed information about real estate listings held by brokerage firms other than Outland and Associates / JoAnn Outland include the name of the listing broker. Neither the listing company nor Outland and Associates / JoAnn Outland shall be responsible for any typographical errors, misinformation, misprints and shall be held totally harmless. The Broker providing this data believes it to be correct, but advises interested parties to confirm any item before relying on it in a purchase decision. Copyright 2026. California Regional Multiple Listing Service. All rights reserved. 109 S 3rd ST
Lompoc, CA











