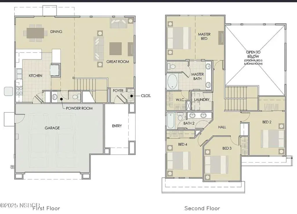
Welcome to this beautifully maintained two-story home nestled in the heart of Guadalupe. Just minutes from the iconic Pacific Coast. With its spacious 4-bedroom, 2.5-bath layout, this residence blends modern comfort with timeless design. Step inside to a bright and airy open-concept floor plan featuring high celling, abundant natural light, and a seamless flow between the living, dining, and Kitchen area, perfect for both entertaining and everyday living. The fireplace built in shiplap electric with mantel. The kitchen is a dream for any home chef, pleasant rich espresso cabinetry, stainless-steel appliances, Quartz countertops, and a large breakfast bar seating. Big size bucket sink, Designer light fixtures, White subway title backsplash. Owned water softener system. Tankless water heater. Beautiful Iron staircase to all four comfortable bedrooms upstairs, the primary suite with a walk-in closet and private en-suite bath, amazing views from upstairs of local dune mountains. Step outside you’ll find a large backyard featuring a nice Gazebo, perfect for outdoor dining, relaxing, or weekend gatherings. The low maintenance landscaping offers space to personalize, garden, or simply enjoy the California sunshine. Around the beautiful park and walking path for your daily activities.
Current real estate data for Single Family in Guadalupe as of Mar 14, 2026
6
Single Family Listed
33
Avg DOM
391
Avg $ / SqFt
$886,000
Avg List Price
Property Details
Price:
$729,000
MLS #:
ML82032438
Status:
Active
Beds:
4
Baths:
3
Type:
Single Family
Subtype:
Single Family Residence
Listed Date:
Jan 24, 2026
Finished Sq Ft:
2,015
Lot Size:
5,227 sqft / 0.12 acres (approx)
Year Built:
2019
Schools
School District:
Other
Interior
Appliances
RF
Bathrooms
2 Full Bathrooms, 1 Half Bathroom
Cooling
NO
Flooring
TILE
Heating
FA
Exterior
Architectural Style
SPN
Parking Spots
2
Roof
TLE
Financial
Map
Contact Us
Mortgage Calculator
Community
- Address211 Las Flores DR Guadalupe CA
- CityGuadalupe
- CountySanta Barbara
- Zip Code93434
Subdivisions in Guadalupe
Property Summary
- 211 Las Flores DR Guadalupe CA is a Single Family for sale in Guadalupe, CA, 93434. It is listed for $729,000 and features 4 beds, 3 baths, and has approximately 2,015 square feet of living space, and was originally constructed in 2019. The current price per square foot is $362. The average price per square foot for Single Family listings in Guadalupe is $391. The average listing price for Single Family in Guadalupe is $886,000. To schedule a showing of MLS#ml82032438 at 211 Las Flores DR in Guadalupe, CA, contact your Outland and Associates / JoAnn Outland agent at 8054417754.
Similar Listings Nearby
Full-time Real Estate Broker, sold 1400+ Properties in SLO and SBC County. 40+ years of local real estate knowledge and experience. I understand each sale is about you and your goals. I know as we get older, we don’t have time to make up for any mistakes especially when it comes to one the most significant investments. I care about my clients and work very hard to share my knowledge and protect you along the way. I place the appropriate verbiage in the listing and listing agreement depending…
More About JoAnn
Courtesy of Bay One Realty. Disclaimer: All data relating to real estate for sale on this page comes from the Broker Reciprocity (BR) of the California Regional Multiple Listing Service. Detailed information about real estate listings held by brokerage firms other than Outland and Associates / JoAnn Outland include the name of the listing broker. Neither the listing company nor Outland and Associates / JoAnn Outland shall be responsible for any typographical errors, misinformation, misprints and shall be held totally harmless. The Broker providing this data believes it to be correct, but advises interested parties to confirm any item before relying on it in a purchase decision. Copyright 2026. California Regional Multiple Listing Service. All rights reserved. 211 Las Flores DR
Guadalupe, CA






































