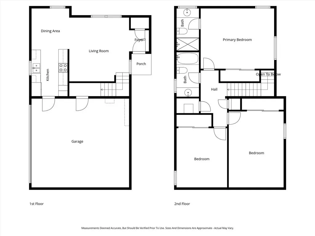
Rare 3 bedroom & 2 bathroom home in the Long Oak complex in Grover Beach, conveniently located near shopping and restaurants. This two-story home offers a functional layout with ample windows for natural light. The entry includes a coat closet, and brand-new carpet continues throughout the home. The living room provides comfortable living space, and the kitchen includes vinyl flooring, countertop workspace, a double-basin stainless steel sink, and stainless steel appliances including an electric range, microwave, refrigerator, and dishwasher. Upstairs, the primary bedroom features two large windows, a wardrobe closet, and an en suite bathroom with a single-sink vanity and shower with glass enclosure. Two spacious additional bedrooms include generous wardrobe closets with shelving and hanging bars. A hallway linen closet provides additional storage, and the hall bathroom includes tile flooring, a granite countertop vanity, and a tub/shower with tile surround. Additional features include a two-car attached garage with built-in shelving and storage. A great opportunity for buyers to make it their own!
Current real estate data for Single Family in Grover Beach as of Apr 11, 2026
50
Single Family Listed
45
Avg DOM
532
Avg $ / SqFt
$735,634
Avg List Price
Property Details
Price:
$565,000
MLS #:
SC26051162
Status:
Active
Beds:
3
Baths:
2
Type:
Single Family
Subtype:
Single Family Residence
Subdivision:
Grover Beach 330
Neighborhood:
grvcgroverbeach
Listed Date:
Mar 11, 2026
Finished Sq Ft:
1,387
Lot Size:
1,033 sqft / 0.02 acres (approx)
Year Built:
1979
Schools
School District:
Lucia Mar Unified
Interior
Appliances
DW, RF, ER
Bathrooms
1 Full Bathroom, 1 Three Quarter Bathroom
Cooling
NO
Flooring
TILE, VINY, CARP
Heating
FA, GAS
Laundry Features
IG
Levels
U
Exterior
Accessibility Features
NO
Attached Garage YN
1
Common Walls
_1CW
Community Features
SDW, CRB, CW
Construction Materials
STC
Fencing
NO
Garage Spaces
2
Parking Spots
2
Parking Total
2
Patio And Porch Features
NO
Roof
CMP
Security Features
SD, COD
Spa Features
NO
View
NO
Financial
HOA Fee
$330
HOA Fee Frequency
MO
Map
Contact Us
Mortgage Calculator
Community
- Address1624 Longbranch AV Grover Beach CA
- SubdivisionGrover Beach (330)
- CityGrover Beach
- CountySan Luis Obispo
- Zip Code93433
Subdivisions in Grover Beach
Property Summary
- Located in the Grover Beach (330) subdivision, 1624 Longbranch AV Grover Beach CA is a Single Family for sale in Grover Beach, CA, 93433. It is listed for $565,000 and features 3 beds, 2 baths, and has approximately 1,387 square feet of living space, and was originally constructed in 1979. The current price per square foot is $407. The average price per square foot for Single Family listings in Grover Beach is $532. The average listing price for Single Family in Grover Beach is $735,634. To schedule a showing of MLS#sc26051162 at 1624 Longbranch AV in Grover Beach, CA, contact your Outland and Associates / JoAnn Outland agent at 8054417754.
Similar Listings Nearby
Full-time Real Estate Broker, sold 1400+ Properties in SLO and SBC County. 40+ years of local real estate knowledge and experience. I understand each sale is about you and your goals. I know as we get older, we don’t have time to make up for any mistakes especially when it comes to one the most significant investments. I care about my clients and work very hard to share my knowledge and protect you along the way. I place the appropriate verbiage in the listing and listing agreement depending…
More About JoAnn
Courtesy of Central Coast Sotheby’s International Realty. Disclaimer: All data relating to real estate for sale on this page comes from the Broker Reciprocity (BR) of the California Regional Multiple Listing Service. Detailed information about real estate listings held by brokerage firms other than Outland and Associates / JoAnn Outland include the name of the listing broker. Neither the listing company nor Outland and Associates / JoAnn Outland shall be responsible for any typographical errors, misinformation, misprints and shall be held totally harmless. The Broker providing this data believes it to be correct, but advises interested parties to confirm any item before relying on it in a purchase decision. Copyright 2026. California Regional Multiple Listing Service. All rights reserved. 1624 Longbranch AV
Grover Beach, CA



























