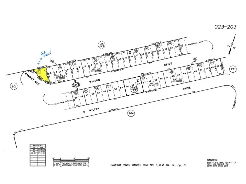
Oversize Single Lodge Hill Lot on a tree lined Corner of Wilton Drive & Ramsey Ave. Not in special projects 1. Currently not on CCSD water wait list. This is a buy and hold until CCSD allows single lots less than 3500sqft to receive the transfer of a local water list position. Lot is priced accordingly. Offered for $6,900.
Property Details
Price:
$6,900
MLS #:
SC25263146
Status:
Active
Beds:
0
Baths:
0
Type:
Land
Subdivision:
Lodge Hill430
Neighborhood:
cambcambria
Listed Date:
Nov 19, 2025
Lot Size:
2,797 sqft / 0.06 acres (approx)
Schools
Interior
Exterior
Community Features
HIKI, BIKI
Financial
Map
Contact Us
Mortgage Calculator
Community
- Address1985 Wilton DR Cambria CA
- SubdivisionLodge Hill(430)
- CityCambria
- CountySan Luis Obispo
- Zip Code93428
Subdivisions in Cambria
Property Summary
- Located in the Lodge Hill(430) subdivision, 1985 Wilton DR Cambria CA is a Land for sale in Cambria, CA, 93428. It is listed for $6,900 and features 0 acres. To schedule a showing of MLS#sc25263146 at 1985 Wilton DR in Cambria, CA, contact your Outland and Associates / JoAnn Outland agent at 8054417754.
Similar Listings Nearby
Full-time Real Estate Broker, sold 1400+ Properties in SLO and SBC County. 40+ years of local real estate knowledge and experience. I understand each sale is about you and your goals. I know as we get older, we don’t have time to make up for any mistakes especially when it comes to one the most significant investments. I care about my clients and work very hard to share my knowledge and protect you along the way. I place the appropriate verbiage in the listing and listing agreement depending…
More About JoAnn
Courtesy of Jack Posemsky Real Estate. Disclaimer: All data relating to real estate for sale on this page comes from the Broker Reciprocity (BR) of the California Regional Multiple Listing Service. Detailed information about real estate listings held by brokerage firms other than Outland and Associates / JoAnn Outland include the name of the listing broker. Neither the listing company nor Outland and Associates / JoAnn Outland shall be responsible for any typographical errors, misinformation, misprints and shall be held totally harmless. The Broker providing this data believes it to be correct, but advises interested parties to confirm any item before relying on it in a purchase decision. Copyright 2026. California Regional Multiple Listing Service. All rights reserved. 1985 Wilton DR
Cambria, CA














