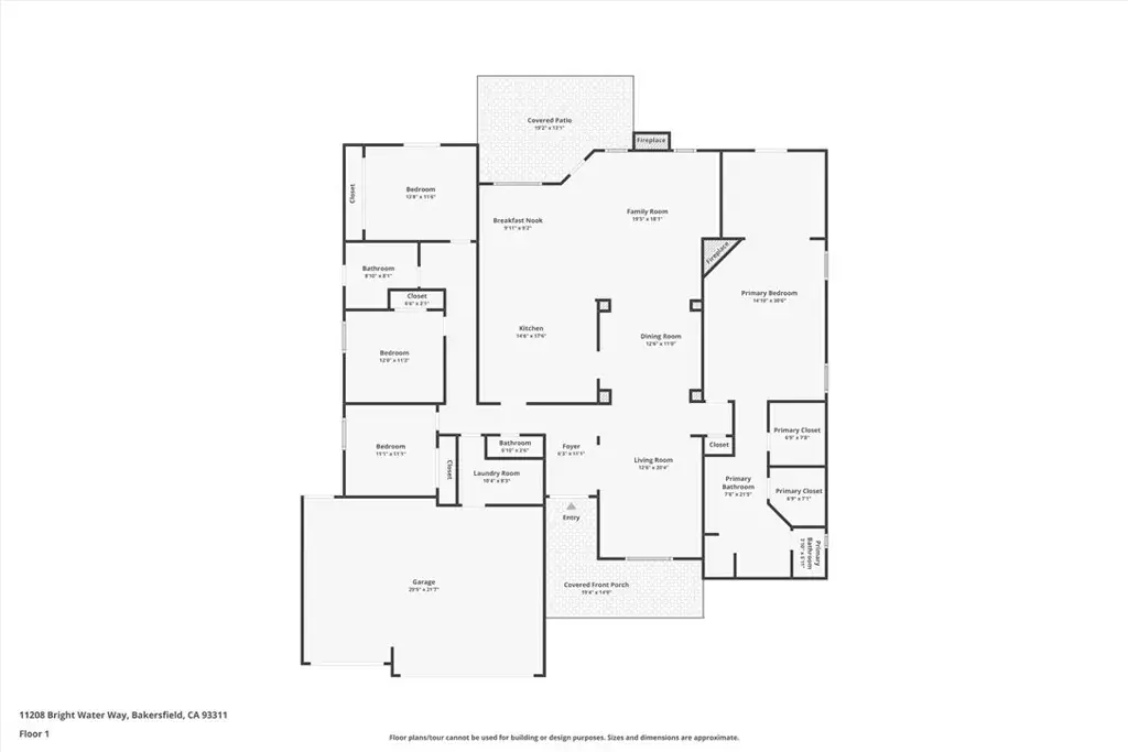
Located in one of the most desirable areas of Seven Oaks Bakersfield, this well-designed single-level home offers a functional and spacious layout ideal for everyday living and entertaining. Featuring four bedrooms and three bathrooms, the floor plan provides generous living areas, a private primary suite, and excellent separation between bedrooms. The inviting courtyard-style entry, wide driveway, and three-car garage enhance curb appeal and convenience.
The backyard is designed for enjoyment with a private swimming pool, perfect for warm Bakersfield days and outdoor gatherings. Adding to the value is a fully owned solar system, helping reduce energy costs. Just minutes from River Walk Park, The Marketplace, River Walk Shopping, Seven Oaks Country Club, clubhouse and Ronald Reagan Elementary School, this home delivers an exceptional combination of layout, outdoor living, energy efficiency, and location. A rare opportunity in Seven Oaks Bakersfield.
The backyard is designed for enjoyment with a private swimming pool, perfect for warm Bakersfield days and outdoor gatherings. Adding to the value is a fully owned solar system, helping reduce energy costs. Just minutes from River Walk Park, The Marketplace, River Walk Shopping, Seven Oaks Country Club, clubhouse and Ronald Reagan Elementary School, this home delivers an exceptional combination of layout, outdoor living, energy efficiency, and location. A rare opportunity in Seven Oaks Bakersfield.
Current real estate data for Single Family in Bakersfield as of Mar 10, 2026
375
Single Family Listed
71
Avg DOM
233
Avg $ / SqFt
$492,807
Avg List Price
Property Details
Price:
$659,999
MLS #:
SR26014562
Status:
Active
Beds:
4
Baths:
3
Type:
Single Family
Subtype:
Single Family Residence
Neighborhood:
bksfbakersfield
Listed Date:
Jan 21, 2026
Finished Sq Ft:
2,737
Lot Size:
9,583 sqft / 0.22 acres (approx)
Year Built:
1997
Schools
School District:
Kern Union
Interior
Bathrooms
2 Full Bathrooms, 1 Half Bathroom
Cooling
CA
Heating
RA
Laundry Features
IR, IN
Exterior
Community Features
SDW, SL, CRB
Parking Spots
2
Financial
HOA Fee
$45
HOA Frequency
MO
Map
Contact Us
Mortgage Calculator
Community
- Address11208 Bright Water Bakersfield CA
- CityBakersfield
- CountyKern
- Zip Code93311
Property Summary
- 11208 Bright Water Bakersfield CA is a Single Family for sale in Bakersfield, CA, 93311. It is listed for $659,999 and features 4 beds, 3 baths, and has approximately 2,737 square feet of living space, and was originally constructed in 1997. The current price per square foot is $241. The average price per square foot for Single Family listings in Bakersfield is $233. The average listing price for Single Family in Bakersfield is $492,807. To schedule a showing of MLS#sr26014562 at 11208 Bright Water in Bakersfield, CA, contact your Outland and Associates / JoAnn Outland agent at 8054417754.
Similar Listings Nearby
Full-time Real Estate Broker, sold 1400+ Properties in SLO and SBC County. 40+ years of local real estate knowledge and experience. I understand each sale is about you and your goals. I know as we get older, we don’t have time to make up for any mistakes especially when it comes to one the most significant investments. I care about my clients and work very hard to share my knowledge and protect you along the way. I place the appropriate verbiage in the listing and listing agreement depending…
More About JoAnn
Courtesy of Berkshire Hathaway HomeServices Associated Real Estate. Disclaimer: All data relating to real estate for sale on this page comes from the Broker Reciprocity (BR) of the California Regional Multiple Listing Service. Detailed information about real estate listings held by brokerage firms other than Outland and Associates / JoAnn Outland include the name of the listing broker. Neither the listing company nor Outland and Associates / JoAnn Outland shall be responsible for any typographical errors, misinformation, misprints and shall be held totally harmless. The Broker providing this data believes it to be correct, but advises interested parties to confirm any item before relying on it in a purchase decision. Copyright 2026. California Regional Multiple Listing Service. All rights reserved. 11208 Bright Water
Bakersfield, CA



































































